22/26
Paylaş
Resmi Orjinal Boyutunda Göster
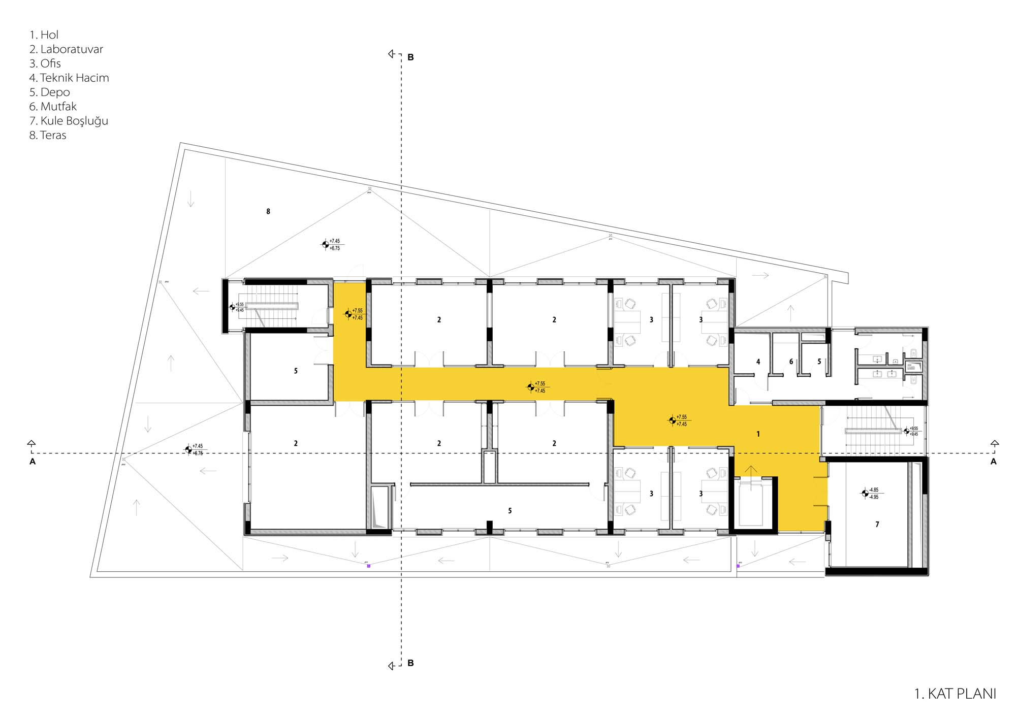
ABMikroNaNo ARGE Binası
Proje Yeri: Ankara, Çankaya
Proje Ofisi: Bütüner Mimarlık
Proje Tipi: Ar-Ge Binası
Proje Tipi Grubu: Eğitim, Ticari
Tasarım Ekibi: Hüseyin Bütüner, Işıl Sencar Ertosun
İşveren: Bilkent Üniversitesi Yapı İşleri ve Teknik Daire Başkanlığı
Danışman: Cem Korkmaz
Yardımcı: Cenk Çeşmeli
Ana Yüklenici: BİLBAK A.Ş.
Peyzaj Mimarlığı: Bütüner Mimarlık, Tülin Göçer Munzur
Proje Yöneticisi: Gülşah Karakaya
Statik Projesi: Kınacı Mühendislik, Mehmet Zafer Kınacı
Mekanik Projesi: Metta, Meriç Şapçı
Elektrik Projesi: Yurdakul Mühendislik, Özgür Ulupınar
Maket: Atöyle 96, Melih Apak
Fotoğraf: Cem Korkmaz, Koray Kalay
Proje Başlangıç Yılı: 2014
Proje Bitiş Yılı: 2015
İnşaat Başlangıç Yılı: 2015
İnşaat Bitiş Yılı: 2015
Arsa Alanı: 13,948 m2
Toplam İnşaat Alanı: 3,814 m2