4/16
Paylaş
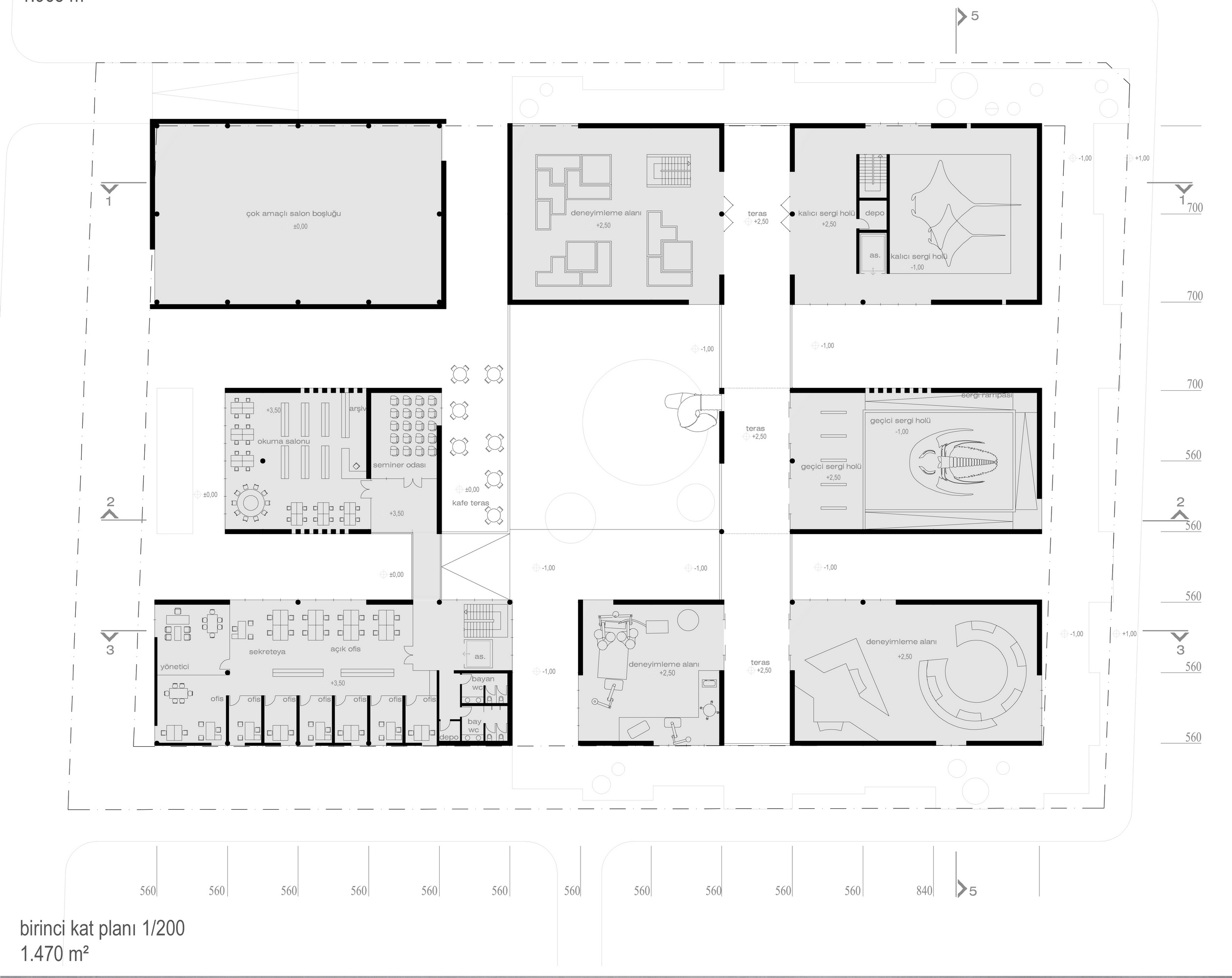
Resmi Orjinal Boyutunda Göster
3. Mansiyon (Kolektif Mimarlar & Buda Mimarlık)
Proje Yeri: Bornova, İzmir
Proje Ofisi: Kolektif Mimarlar, Buda Mimarlık
Proje Tipi: Sosyal Tesis
Proje Tipi Grubu: 3. Mansiyon
Tasarım Ekibi: Barış Demir, Sıddık Güvendi, Burak Pelenk
Danışman: Harun Sönmez, Orhan Murat Gürson, Birkan Yüksek, Özge Dominguez Perez
Yardımcı: Soyer Bayraktar, Dilara Demiralp, Damla İçyer