13/27
Paylaş
Resmi Orjinal Boyutunda Göster
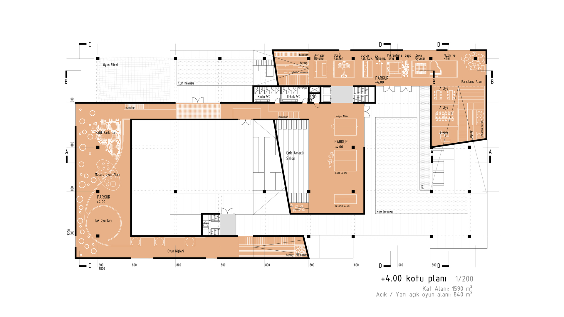
2. Ödül (SCRA + FREA)
Project Location: İzmir, Bornova
Project Office: SCRA Mimarlık, FREA
Project Type: Social Facility
Proje Tipi Grubu: 2. Ödül
Tasarım Ekibi: Ömer Emre Şavural, Seden Cinasal Avcı, Ramazan Avcı, Fatih Yavuz, İbrahim Yavuz, Yücel Hüseyin Sala , Baran Ekinci, Özlem Kurtçu, Zeynep Demirhan, Su Sarıhan
Consultant: Mehmet Zafer Kınacı, Kemal Ovacık, Bahri Türkmen, Mehmet Çıkrık, Neslihan Avcı