16/17
Paylaş
Resmi Orjinal Boyutunda Göster
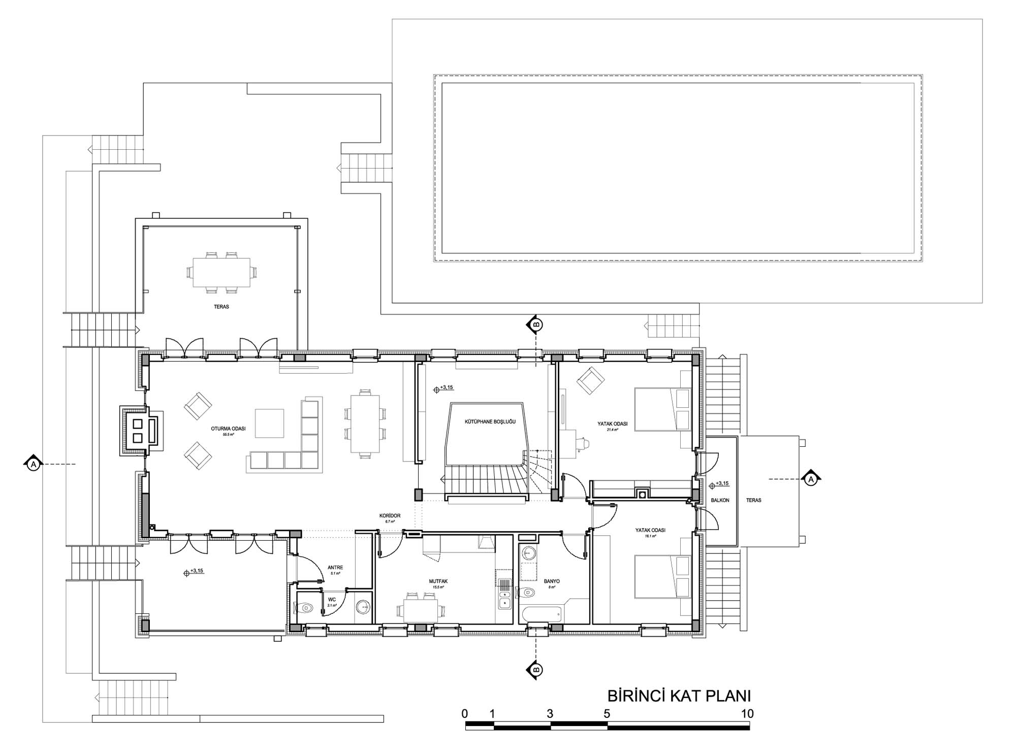
Kas Villa
Proje Yeri: Kaş, Antalya
Proje Ofisi: MTK Mimarlık-Danışmanlık
Proje Tipi: Tek Ev / Villa
Proje Tipi Grubu: Konut
Tasarım Ekibi: M.Turhan Kayasü, Mert Kayasü, Elif Köktaş
Ana Yüklenici: Piramit Mühendislik
Proje Yöneticisi: M.Turhan Kayasü
Statik Projesi: ERKA-AS Mühendislik
Mekanik Projesi: FNP Mühendislik
Elektrik Projesi: ERKA-AS Mühendislik
Proje Başlangıç Yılı: 2011
Proje Bitiş Yılı: 2011, 2013
İnşaat Başlangıç Yılı: 2012
İnşaat Bitiş Yılı: 2014
Arsa Alanı: 1,481 m2
Toplam İnşaat Alanı: 400 m2