7/7
Paylaş
Resmi Orjinal Boyutunda Göster
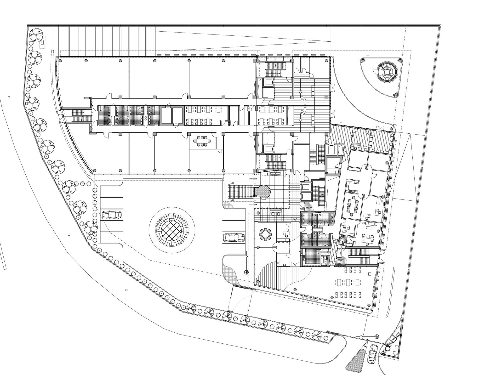
Favori Kuyumculuk Yönetim Merkezi ve Üretim Tesisi
Proje Yeri: İstanbul, Bağcılar
Proje Ofisi: GMW MIMARLIK
Proje Tipi: Ofis, Atölye Çalışması
Proje Tipi Grubu: Ticari
Tasarım Ekibi: Ali Evrenay Özveren, Selim Altunay, Tuğba Alkaya, Kudret Demircioğlu, Merih Demirer
İşveren: Favori Ltd
Proje Başlangıç Yılı: 2011, 2001
Proje Bitiş Yılı: 2002
İnşaat Başlangıç Yılı: 2002
İnşaat Bitiş Yılı: 2002
Toplam İnşaat Alanı: 21,500 m2