8/10
Paylaş
Resmi Orjinal Boyutunda Göster
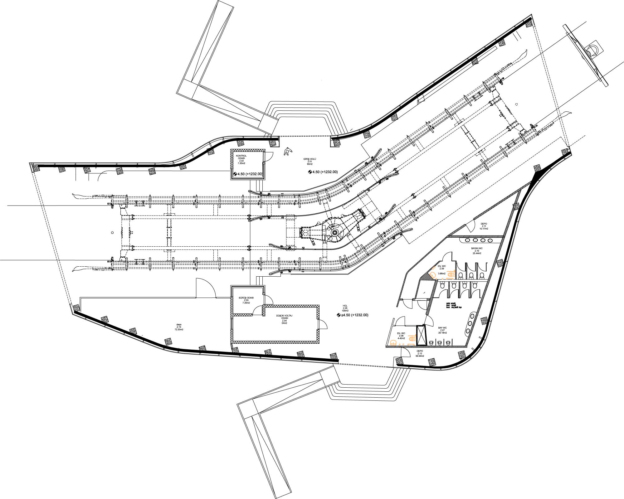
Bursa Teleferik Kadıyayla İstasyonu
Proje Yeri: Bursa, Yıldırım
Proje Ofisi: Korfalı Mimarlık
Proje Tipi: İstasyon / Durak
Proje Tipi Grubu: Ulaşım
Tasarım Ekibi: Yamaç Korfalı
Yardımcı: Sevde Boztepe
Ana Yüklenici: Bursa Teleferik AŞ
İç Mekan Projesi: Bursa Teleferik AŞ
Statik Projesi: Kemal Keser
Proje Başlangıç Yılı: 2012
Proje Bitiş Yılı: 2012
İnşaat Başlangıç Yılı: 2012
İnşaat Bitiş Yılı: 2014
Toplam İnşaat Alanı: 1,500 m2