8/21
Paylaş
Resmi Orjinal Boyutunda Göster
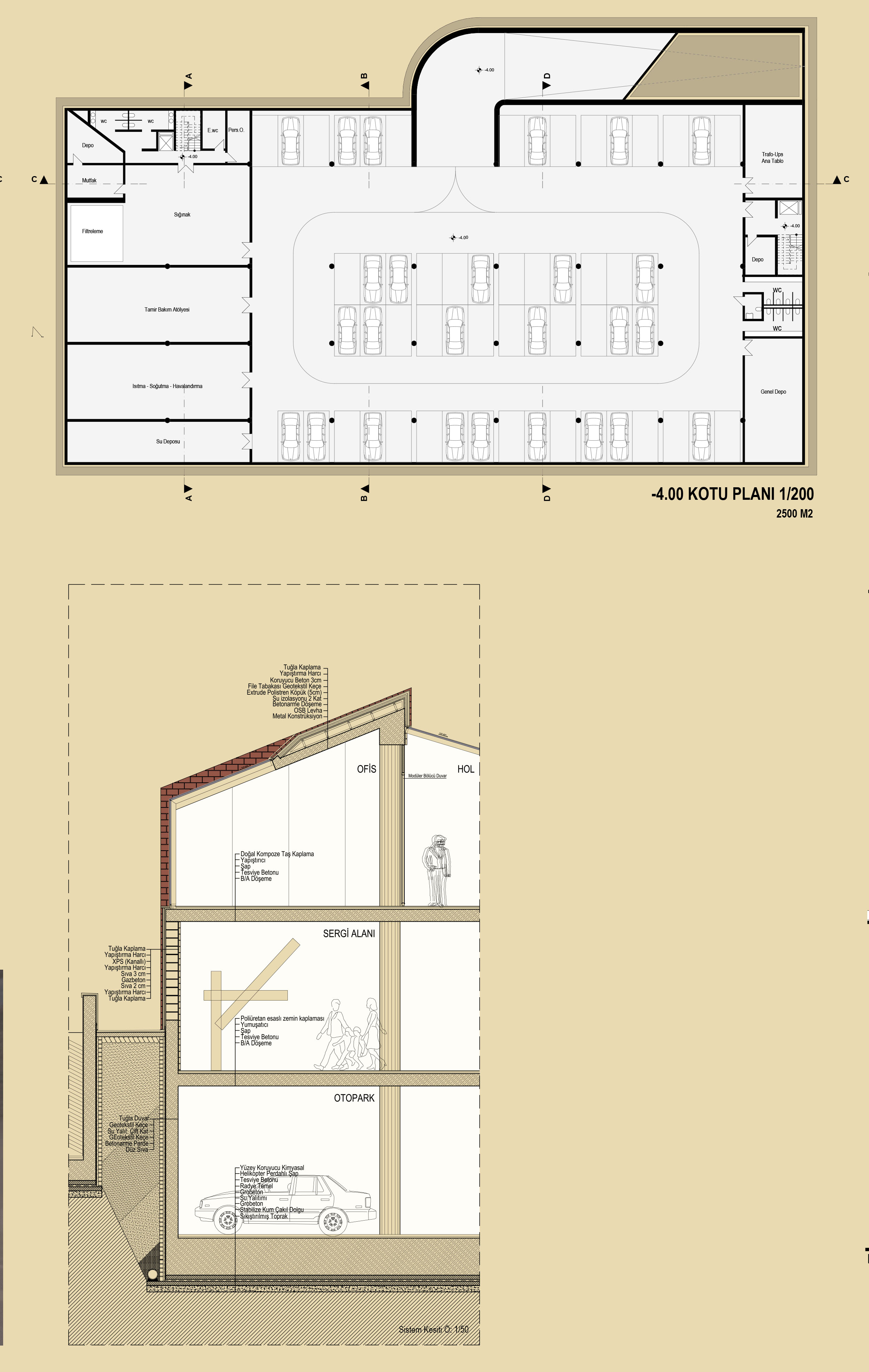
1. Mansiyon
Proje Yeri: Bornova, İzmir
Proje Tipi: Sosyal Tesis
Proje Tipi Grubu: 1. Mansiyon
Tasarım Ekibi: Deniz Dokgöz, Ferhat Hacıalibeyoğlu
Danışman: Orhan Ersan, Cemal Coşak, Uğur Yılmaz, Ali Kılıç, Harun Kırlıoğlu
Yardımcı: Bora Örgülü, Gülcan Afacan, Ahsen Düşgün, Derya Dokgöz, Ela Hacıalibeyoğlu