5/7
Paylaş
Resmi Orjinal Boyutunda Göster
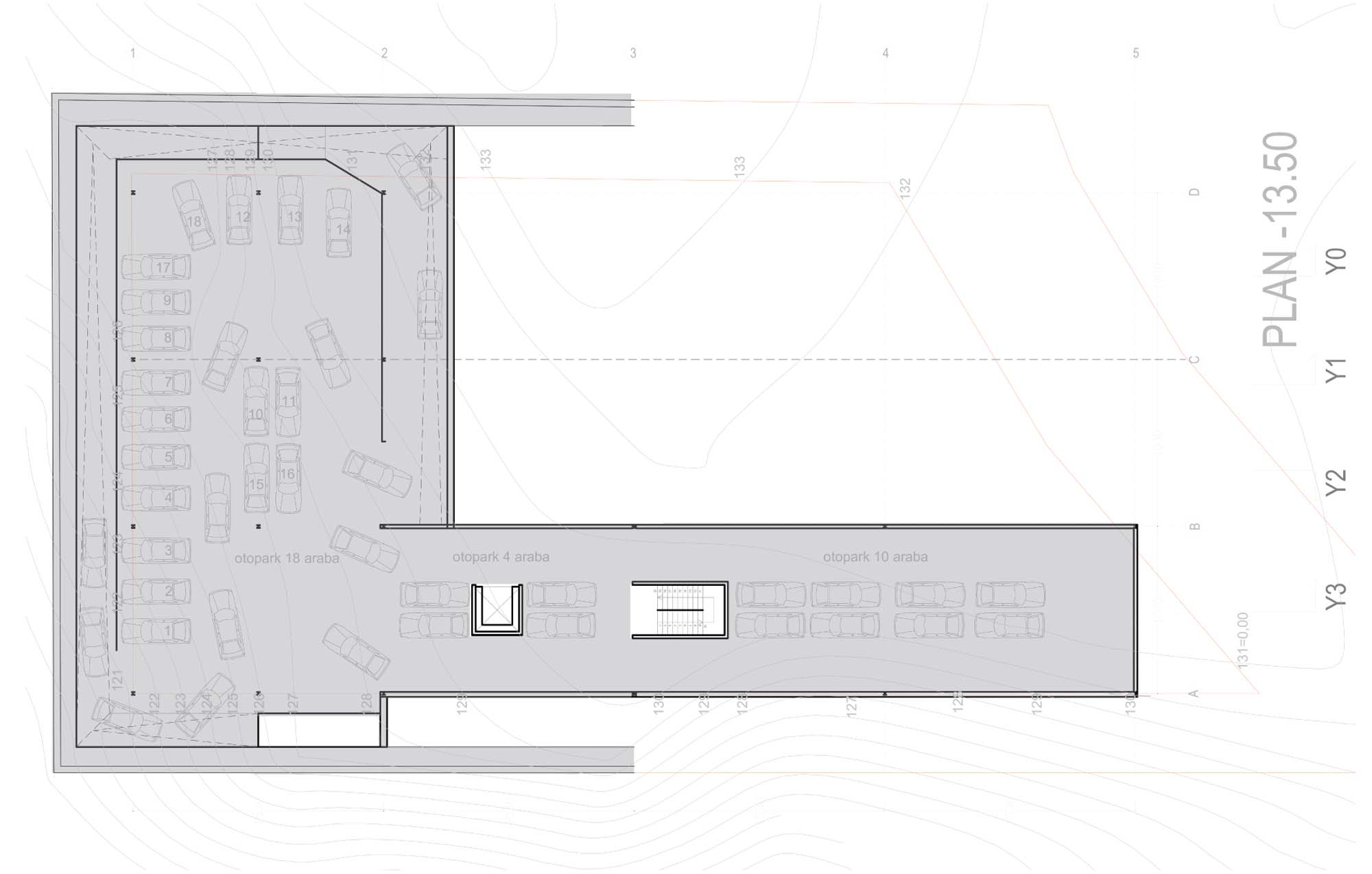
Halkalıda Kültür Merkezi
Proje Yeri: Halkalı, İstanbul
Proje Ofisi: Defne Önen Mimarlık
Proje Tipi: Kültür Merkezi
Proje Tipi Grubu: Kültür
Tasarım Ekibi: A. Defne Önen
Proje Başlangıç Yılı: 2005
Toplam İnşaat Alanı: 3,000 m²