5/5
Paylaş
Resmi Orjinal Boyutunda Göster
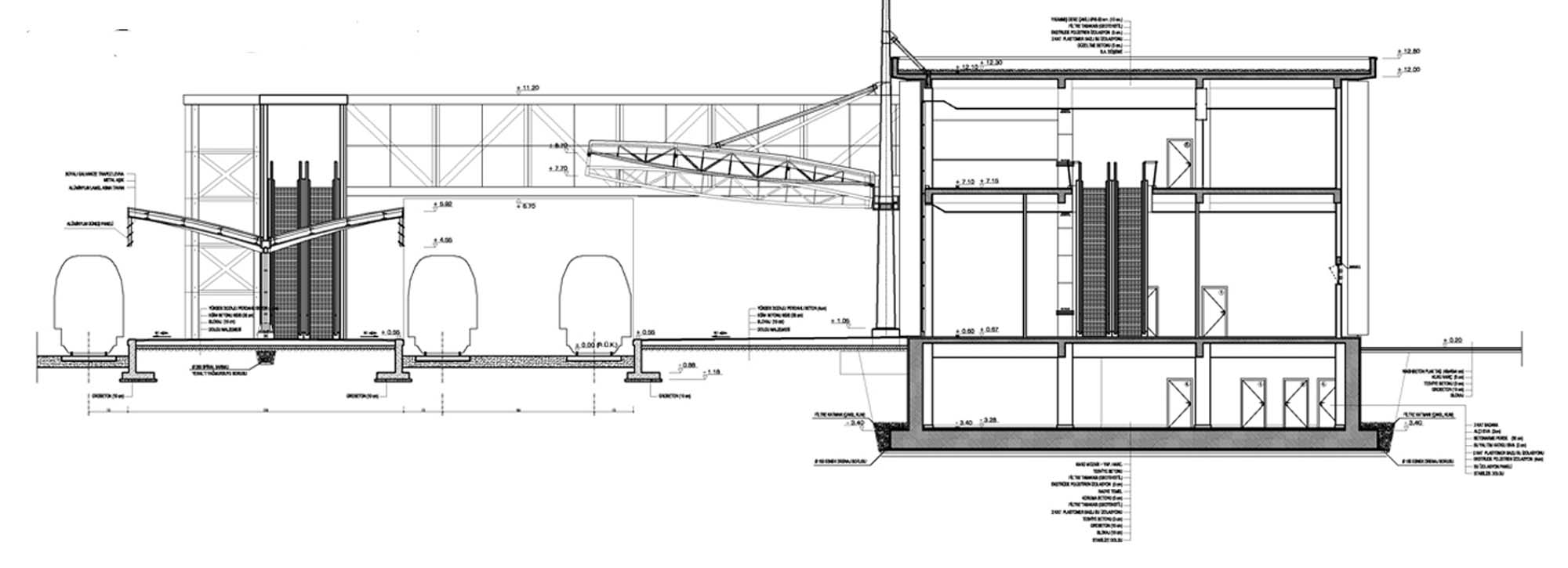
Denizli Hızlı Tren Garı ve İstasyon Tesisleri
Proje Yeri: Denizli
Proje Ofisi: AU Architects, Altınok Müşavirlik ve Mühendislik
Proje Tipi: Demiryolu Yapıları
Proje Tipi Grubu: Ulaşım
Tasarım Ekibi: Alper Ünlü, Oğuz Filik
İşveren: DLH Genel Müdürlüğü
Statik Projesi: Altınok Müşavirlik ve Mühendislik
Mekanik Projesi: Zafer Çuhadar
Elektrik Projesi: Zafer Çuhadar
Proje Başlangıç Yılı: 2011
Toplam İnşaat Alanı: 15,000 m²