10/10
Paylaş
Resmi Orjinal Boyutunda Göster
DPNO1
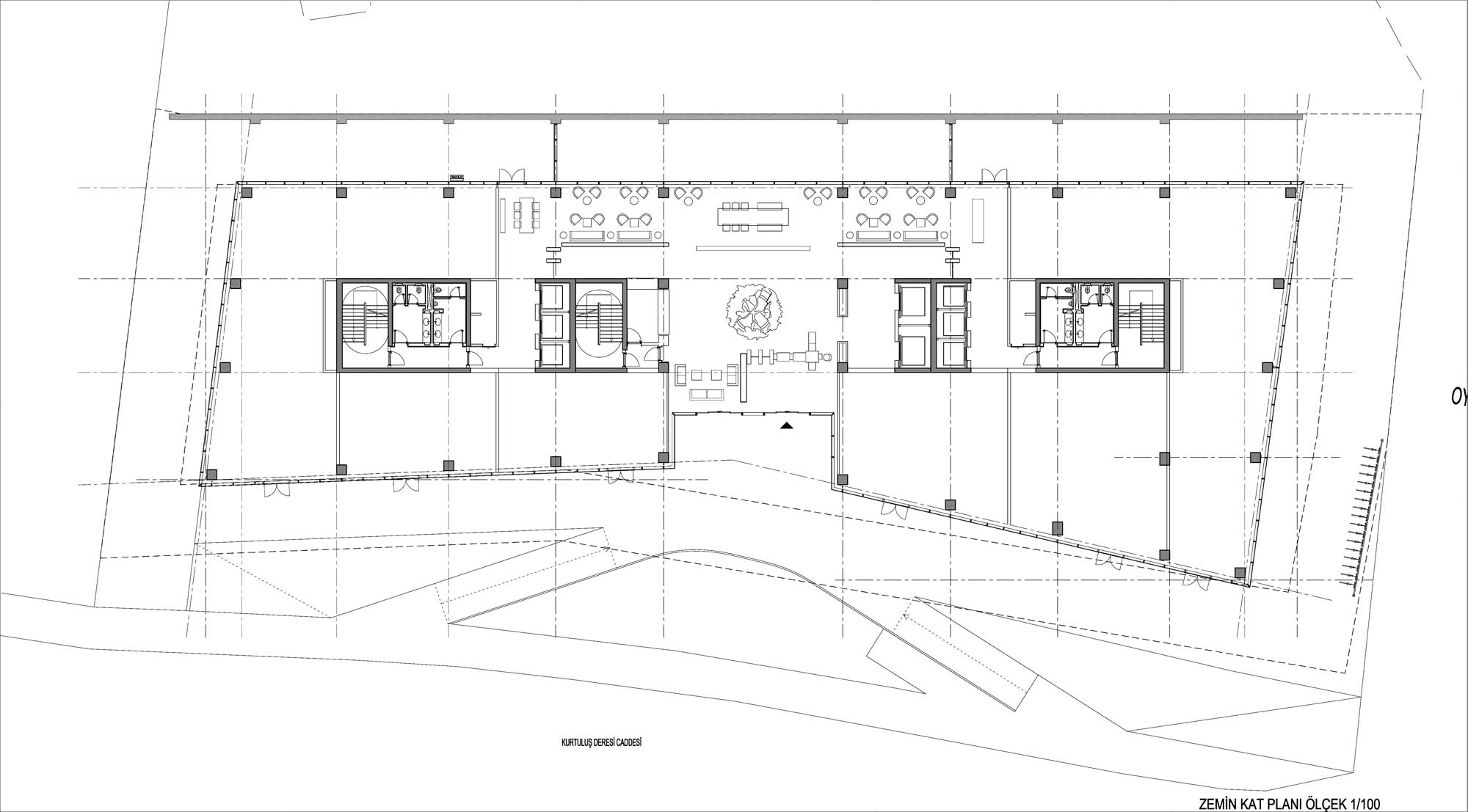
Proje Yeri: İstanbul, Beyoğlu
Proje Ofisi: DB Architects
Proje Tipi: Ofis
Proje Tipi Grubu: Ticari
Tasarım Ekibi: Bünyamin Derman, Serdar Köroğlu, Melih Vahidymarian
İşveren: Kapital Gayrimenkul
Yardımcı: Taner Üsküplü, Nazlı Maral Günenç, Hakkı Can Özkan, Zeynep Sezin Sever Vural
Ana Yüklenici: Kapital Gayrimenkul
Peyzaj Mimarlığı: Spiga Peyzaj Proje Danışmanlık, Başak Taş
İç Mekan Projesi: Tanju Özelgin
Proje Yöneticisi: Serdar Köroğlu, Melih Vahidymarian
Statik Projesi: Yapı Akademisi
Mekanik Projesi: Dinamik Proje Mühendislik
Elektrik Projesi: FDC Elektrik Proje
Proje Başlangıç Yılı: 2012
Proje Bitiş Yılı: 2014
İnşaat Başlangıç Yılı: 2013
İnşaat Bitiş Yılı: 2016
Arsa Alanı: 4,901 m²
Toplam İnşaat Alanı: 17,500 m²