9/22
Paylaş
Resmi Orjinal Boyutunda Göster
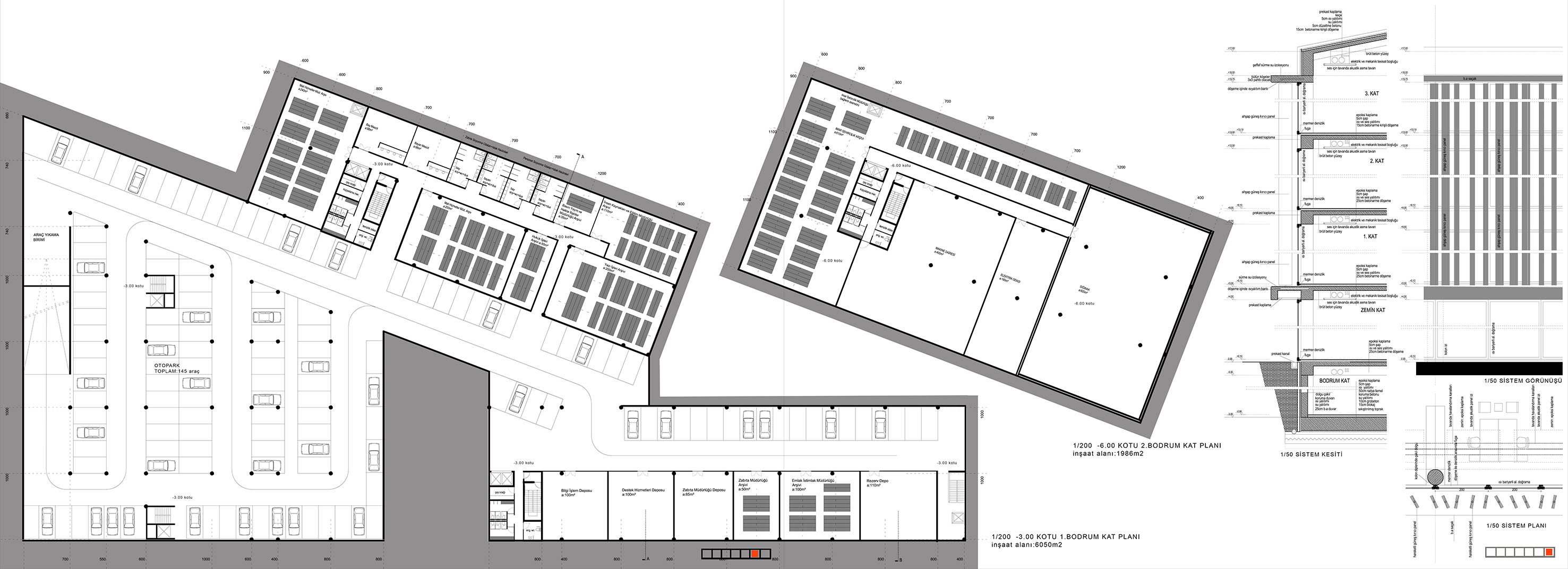
2. Ödül
Project Location: İnegöl
Project Type: Belediye Hizmet Binası
Proje Tipi Grubu: 2. Ödül
Tasarım Ekibi: İbrahim Eyüp, Olcay Ovalı Eyüp
Consultant: Ersin Deniz Çınar, Şenol Tüysüz, Ahmet Naci Boybada, Sabri Pehlivan
Yardımcı: Hakan Deniz Özdemir, Hale Özdemir