17/17
Paylaş
Resmi Orjinal Boyutunda Göster
Maslak Link
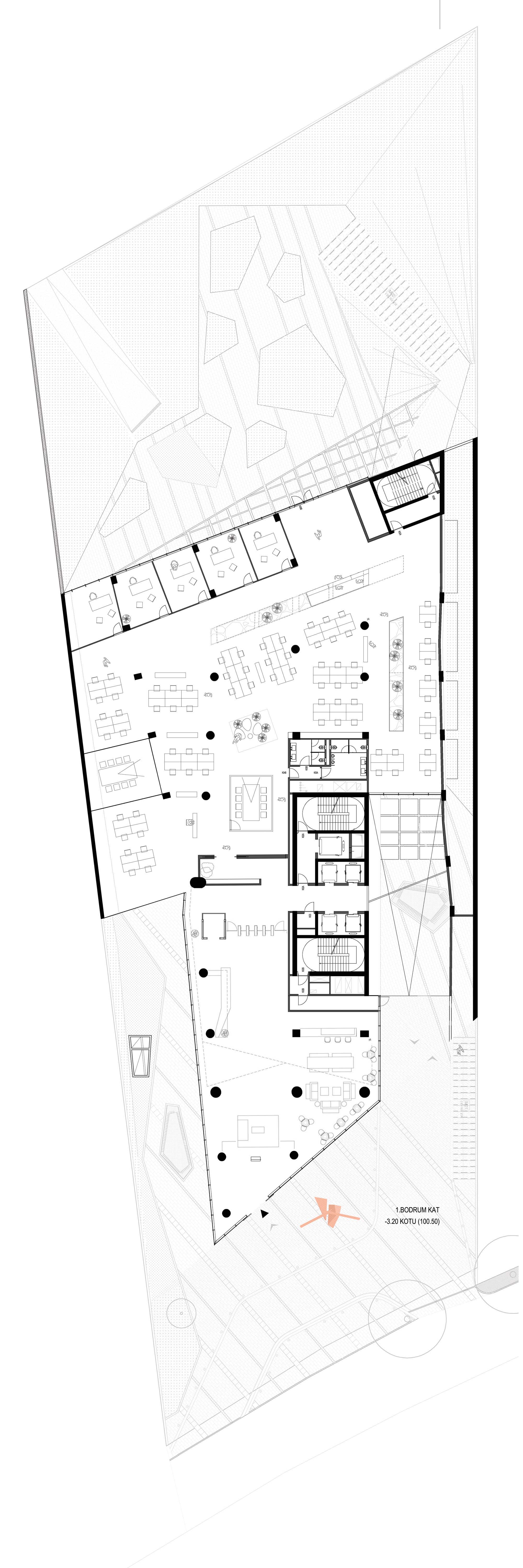
Proje Yeri: İstanbul, Sarıyer
Proje Ofisi: DB Architects
Proje Tipi: Ofis
Proje Tipi Grubu: Ticari
Tasarım Ekibi: Bünyamin Derman, Serdar Köroğlu
İşveren: Kapital Gayrimenkul
Yardımcı: Zeynep Sezin Sever Vural, Sever Vural, Melih Vahidymarian, Taner Üsküplü, Nazlı Maral Günenç, Hakkı Can Özkan
Ana Yüklenici: Kapital Gayrimenkul
Peyzaj Mimarlığı: Spiga Peyzaj Proje Danışmanlık, Başak Taş
İç Mekan Projesi: Tanju Özelgin
Proje Yöneticisi: Serdar Köroğlu
Statik Projesi: Yapı Akademisi
Mekanik Projesi: Dinamik Proje Mühendislik
Elektrik Projesi: FDC Elektrik Proje
Fotoğraf: Tanju Özelgin
Proje Başlangıç Yılı: 2012
Proje Bitiş Yılı: 2014
İnşaat Başlangıç Yılı: 2013
İnşaat Bitiş Yılı: 2016
Arsa Alanı: 4,486 m2
Toplam İnşaat Alanı: 19,800 m2