Kaynak: ARKİTEKT Cilt: 1950 Sayı: 1950-01-02 (217-218) Sayfa: 12-13
6/6
Paylaş
Resmi Orjinal Boyutunda Göster
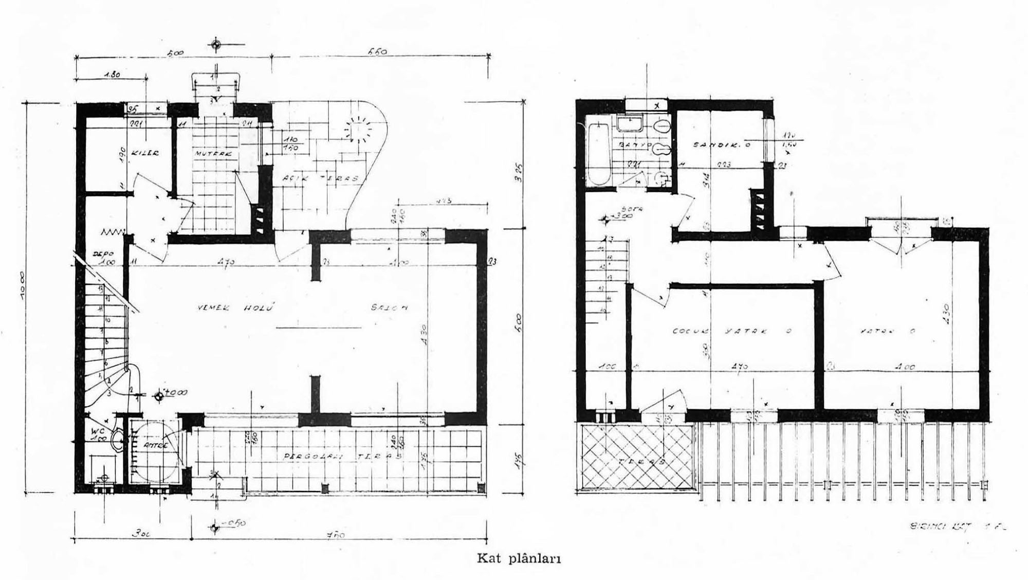
Büyükadada İki Piyango Evi
Project Location: Prens Adaları, İstanbul
Project Type: Single House
Proje Tipi Grubu: Konut
Tasarım Ekibi: Abidin Mortaş
Construction End Date: 1950