14/18
Paylaş
Resmi Orjinal Boyutunda Göster
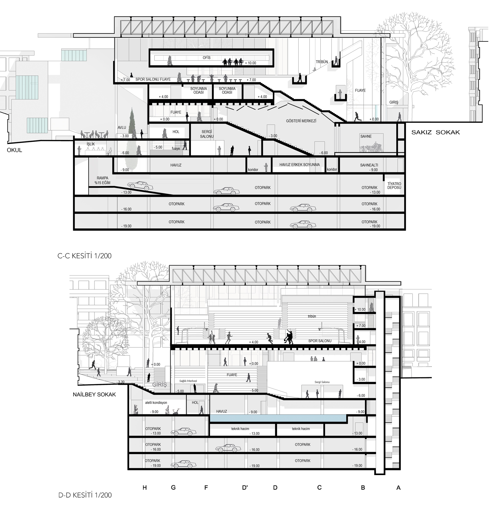
Eşdeğer Mansiyon, Caferağa Spor ve Kültür Merkezi Mimari Proje Yarışması
Project Location: İstanbul, Kadıköy
Project Type: Sports Hall
Proje Tipi Grubu: Eşdeğer Mansiyon
Tasarım Ekibi: Nevzat Oğuz Özer, Yasemen Say Özer
Consultant: Enes Aksu, Burhan Sadıkoğlu, Murat Çatak
Yardımcı: Ahmet Boz, Cantuğ Yıkar, Beyza Yavuz, Caner Haksever, Nurdan Sezgin