12/23
Paylaş
Resmi Orjinal Boyutunda Göster
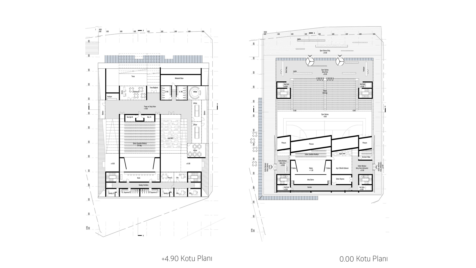
Katılımcı, Caferağa Spor ve Kültür Merkezi Mimari Proje Yarışması
Proje Yeri: Kadıköy, İstanbul
Proje Ofisi: SCRA Mimarlık, FREA
Proje Tipi: Spor Salonu
Proje Tipi Grubu: Katılımcı
Tasarım Ekibi: Fatih Yavuz, Ömer Emre Şavural, Ramazan Avcı, Seden Cinasal Avcı
Yardımcı: Baran Ekinci, Bengü Büyükkayacı, İbrahim Yavuz Yükselsin, Yücel Hüseyin Sala