7/22
Paylaş
Resmi Orjinal Boyutunda Göster
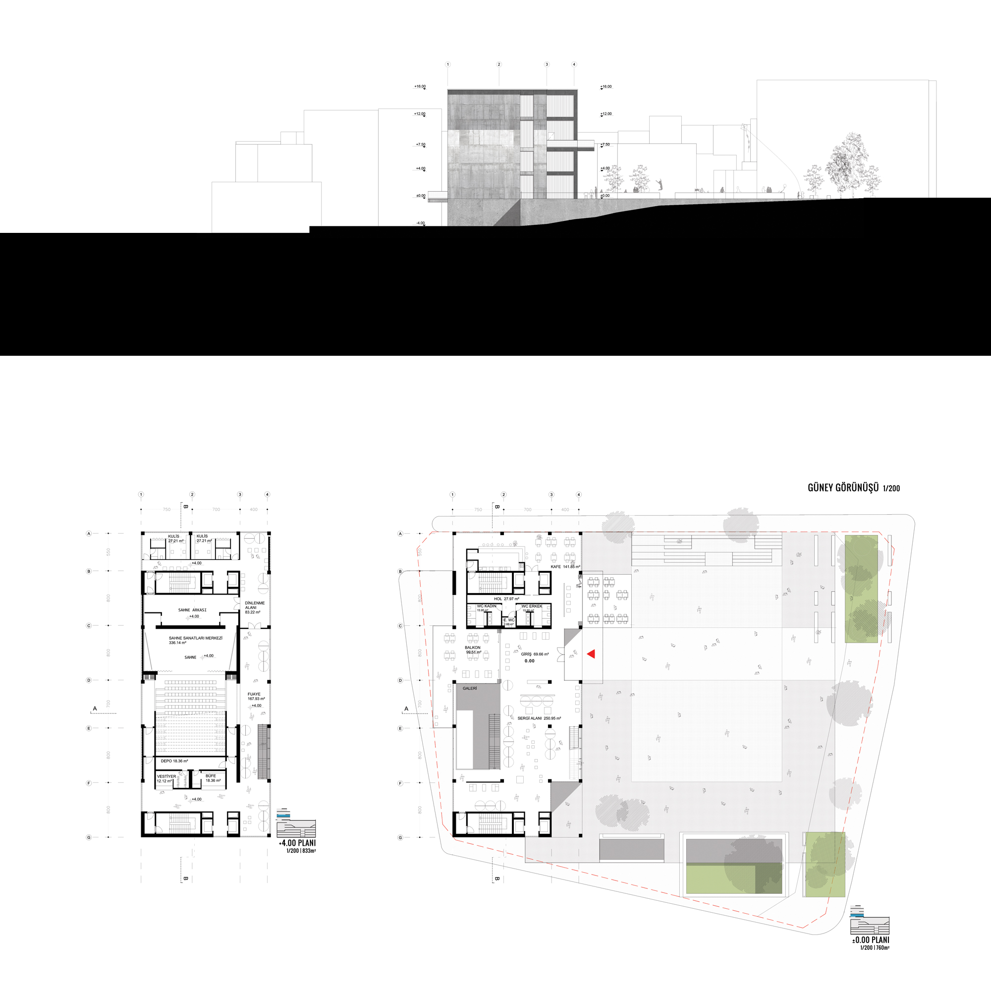
Eşdeğer Mansiyon (9016 Mimarlık), Caferağa Spor ve Kültür Merkezi Mimari Proje Yarışması
Proje Yeri: Kadıköy, İstanbul
Proje Ofisi: 9016 Mimarlık
Proje Tipi: Spor Salonu
Proje Tipi Grubu: Eşdeğer Mansiyon
Tasarım Ekibi: Bilge Altuğ, Mehmet Metin Polat, Gizem Özer, Gökhan Turan, Bengi Altuğ, Ecem Özden
Danışman: Belgin Pekcan, Niyazi Parlar, Ömer Ülker, Ömer Cenk Tiftikçigil, Ali İhsan Özcan