6/17
Paylaş
Resmi Orjinal Boyutunda Göster
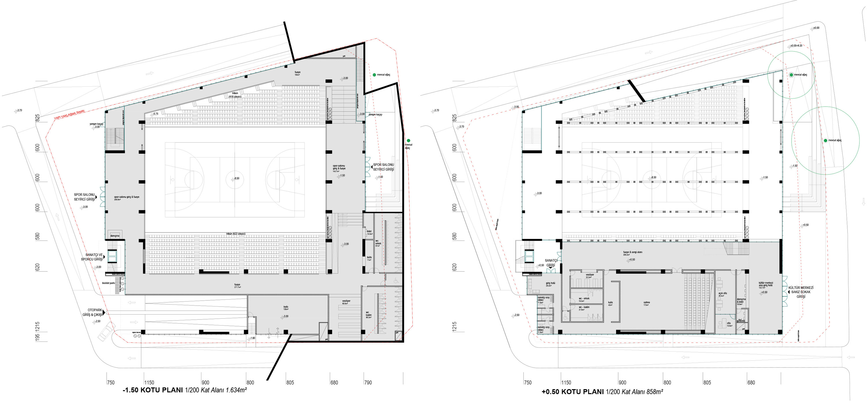
Eşdeğer Mansion (SO?)
Proje Yeri: Kadıköy, İstanbul
Proje Ofisi: SO? Mimarlık ve Fikriyat
Proje Tipi: Spor Salonu
Proje Tipi Grubu: Eşdeğer Mansiyon
Tasarım Ekibi: Sevince Bayrak, Oral Göktaş, Emine Derya Ertan, Atıl Aggündüz, Büşra Ekici, Laura Villeret, Chiara Vaccaro
Danışman: Rana Tülay Kanıt, Ohannes Gül, Mustafa İspir Gürbüz