4/16
Paylaş
Resmi Orjinal Boyutunda Göster
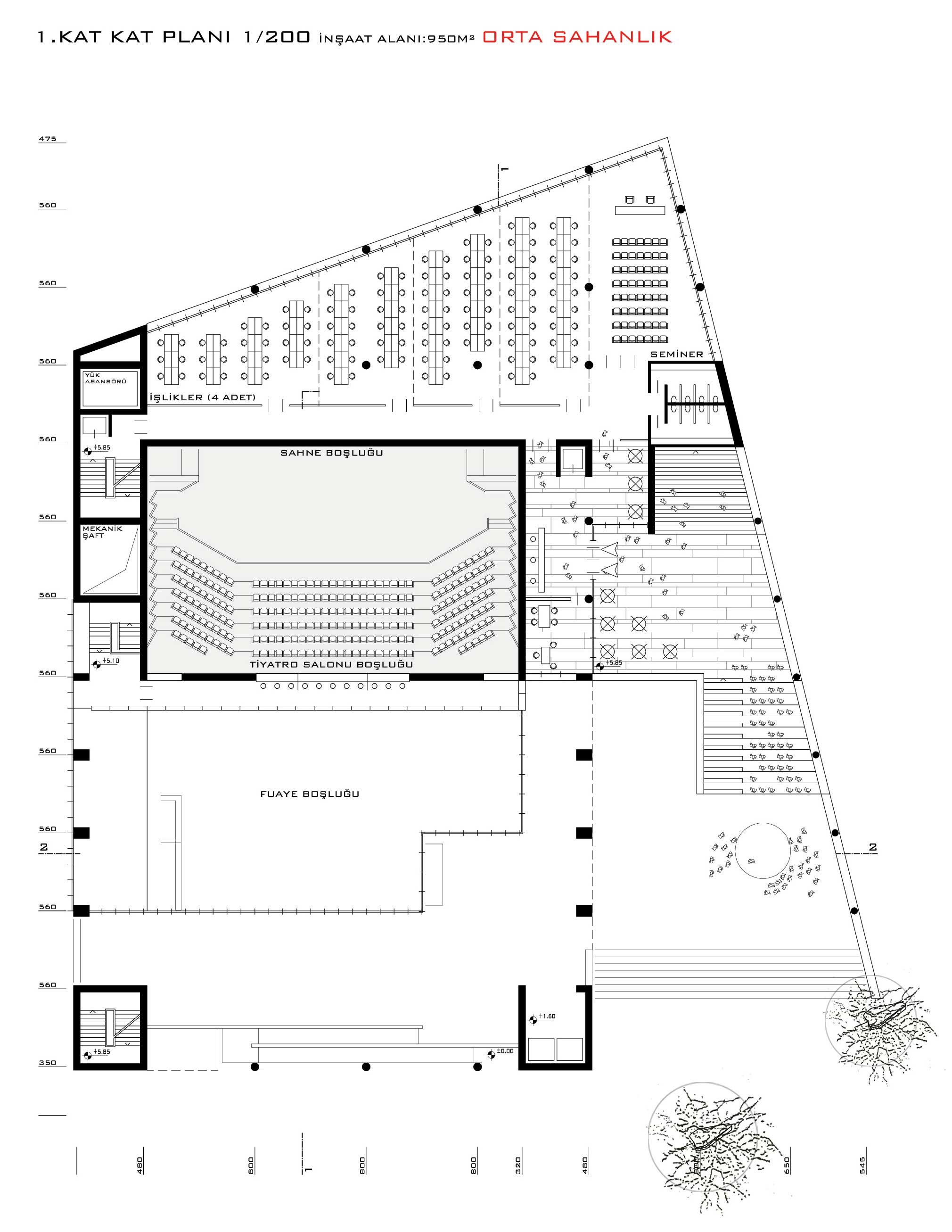
2. Ödül, Caferağa Spor ve Kültür Merkezi Mimari Proje Yarışması
Proje Yeri: İstanbul, Kadıköy
Proje Tipi: Spor Salonu
Proje Tipi Grubu: 2. Ödül
Tasarım Ekibi: Selim Velioğlu, Erce Funda, Orkun Özüer, Ersen Gömleksiz
Danışman: Bülent Deveci, Cafer Aktürk, Hayri Aydın