30/31
Paylaş
Resmi Orjinal Boyutunda Göster
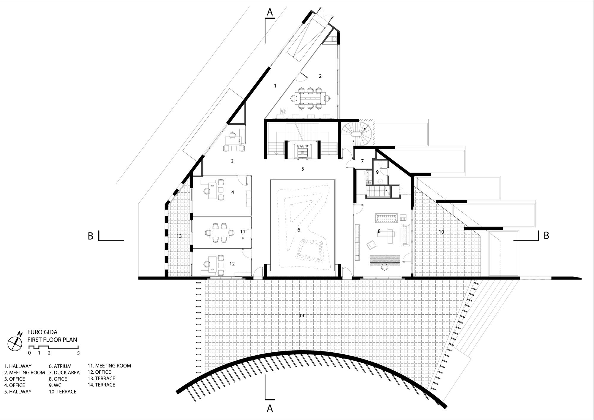
Eurogıda İzmir Kemalpaşa Fabrikası İdari Binası
Proje Yeri: İzmir, Kemalpaşa
Proje Ofisi: Öney Mimarlık
Proje Tipi: Ofis
Proje Tipi Grubu: Ticari
Tasarım Ekibi: Mustafa Öney, Kerem Gürbüzer, Gözde Öney Gürbüzer, Hande Öney
İşveren: Eurogida Sanayi
Ana Yüklenici: Kuryap İnşaat
Peyzaj Mimarlığı: Kardelen Peyzaj Planlama
Proje Yöneticisi: Kerem Gürbüzer
Aydınlatma Projesi: Dark Aydinlatma
Statik Projesi: Tez Yapı
Mekanik Projesi: Gültay Tesisat İnşaat
Elektrik Projesi: Özyavru Eletrik Muhendislik
Altyapı Projesi: Gültay Tesisat İnşaat
Fotoğraf: Ali Kabaş Fotografçılık
Proje Başlangıç Yılı: 2013
Proje Bitiş Yılı: 2014
İnşaat Başlangıç Yılı: 2014
İnşaat Bitiş Yılı: 2015
Arsa Alanı: 4,400 m2