10/33
Paylaş
Resmi Orjinal Boyutunda Göster
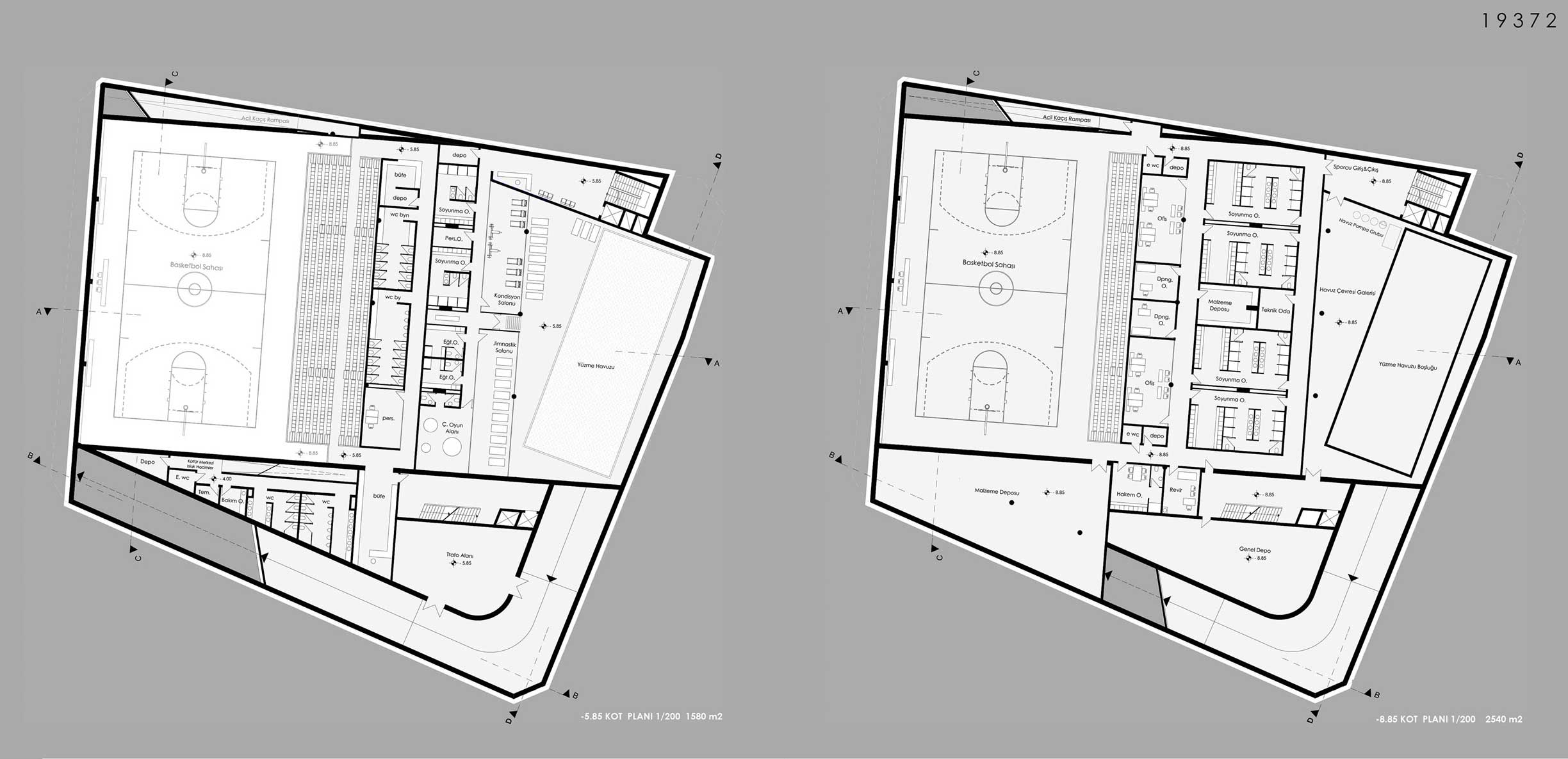
1. Ödül, Caferağa Spor ve Kültür Merkezi Mimari Proje Yarışması
Proje Yeri: İstanbul, Kadıköy
Proje Tipi: Spor Salonu
Proje Tipi Grubu: 1. Ödül
Tasarım Ekibi: Ferhat Hacıalibeyoğlu, Deniz Dokgöz, Orhan Ersan
Danışman: Cemal Coşak, Uğur Yılmaz, Ali Kılıç
Yardımcı: Gülcan Afacan, Bora Örgülü, Ahsen Düşgün