10/21
Paylaş
Resmi Orjinal Boyutunda Göster
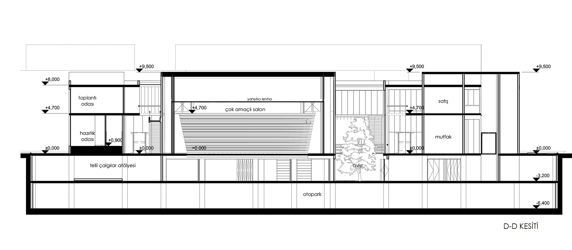
Katılımcı, Şehitkamil Belediyesi Sanat Merkezi Yarışması
Project Location: Gaziantep
Project Type: Cultural Center
Proje Tipi Grubu: Katılımcı
Tasarım Ekibi: Eyüp Gundak, Salih Titrek, Elçin Fatma Ergin