12/16
Paylaş
Resmi Orjinal Boyutunda Göster
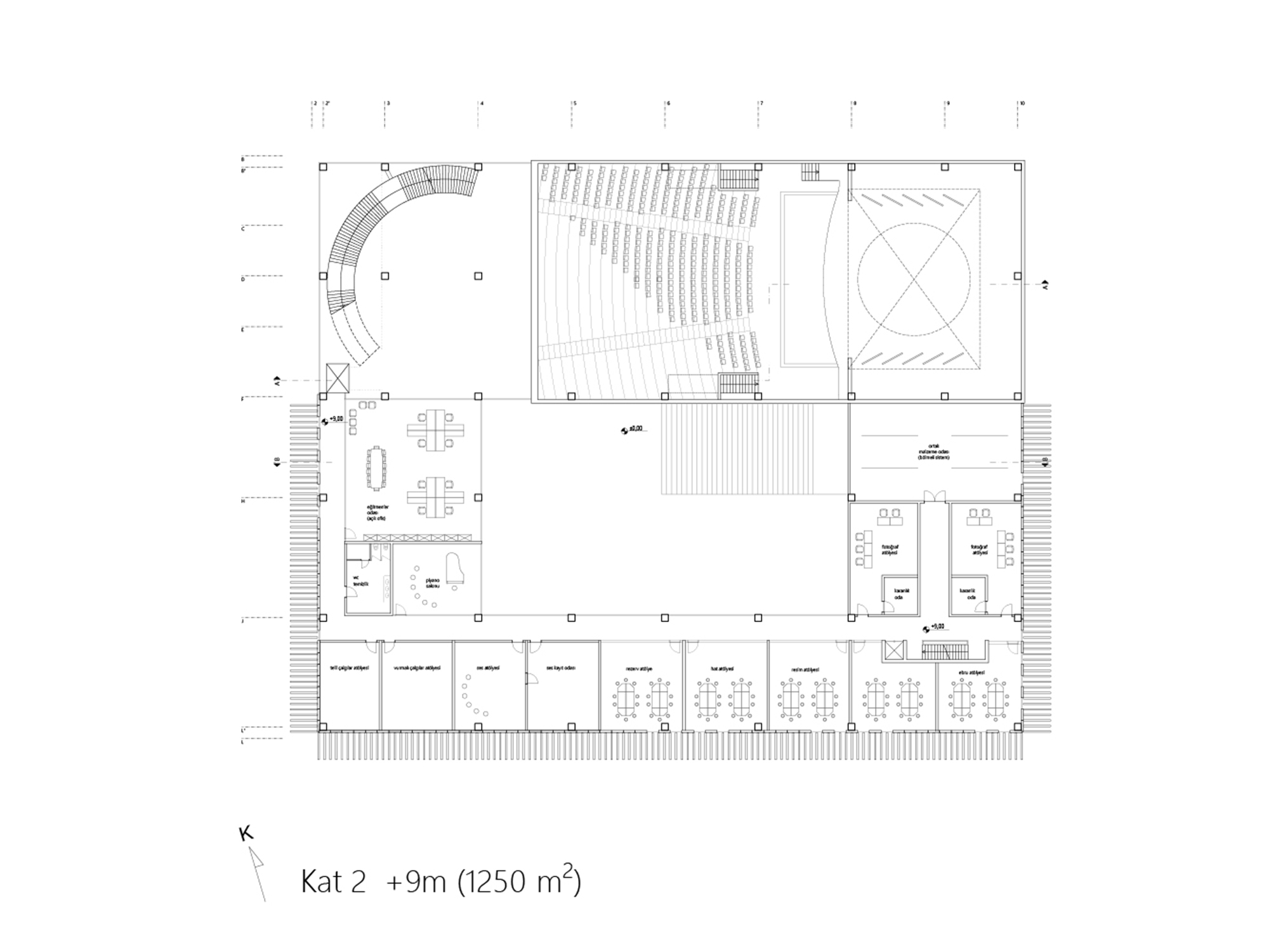
Katılımcı (THINK collective) - Şehitkamil Sanat Merkezi Yarışması
Proje Yeri: Gaziantep
Proje Ofisi: THINK collective
Proje Tipi: Kültür Merkezi
Proje Tipi Grubu: Katılımcı
Tasarım Ekibi: Hüseyin Penbeoğlu, Yasin Toparlar