8/20
Paylaş
Resmi Orjinal Boyutunda Göster
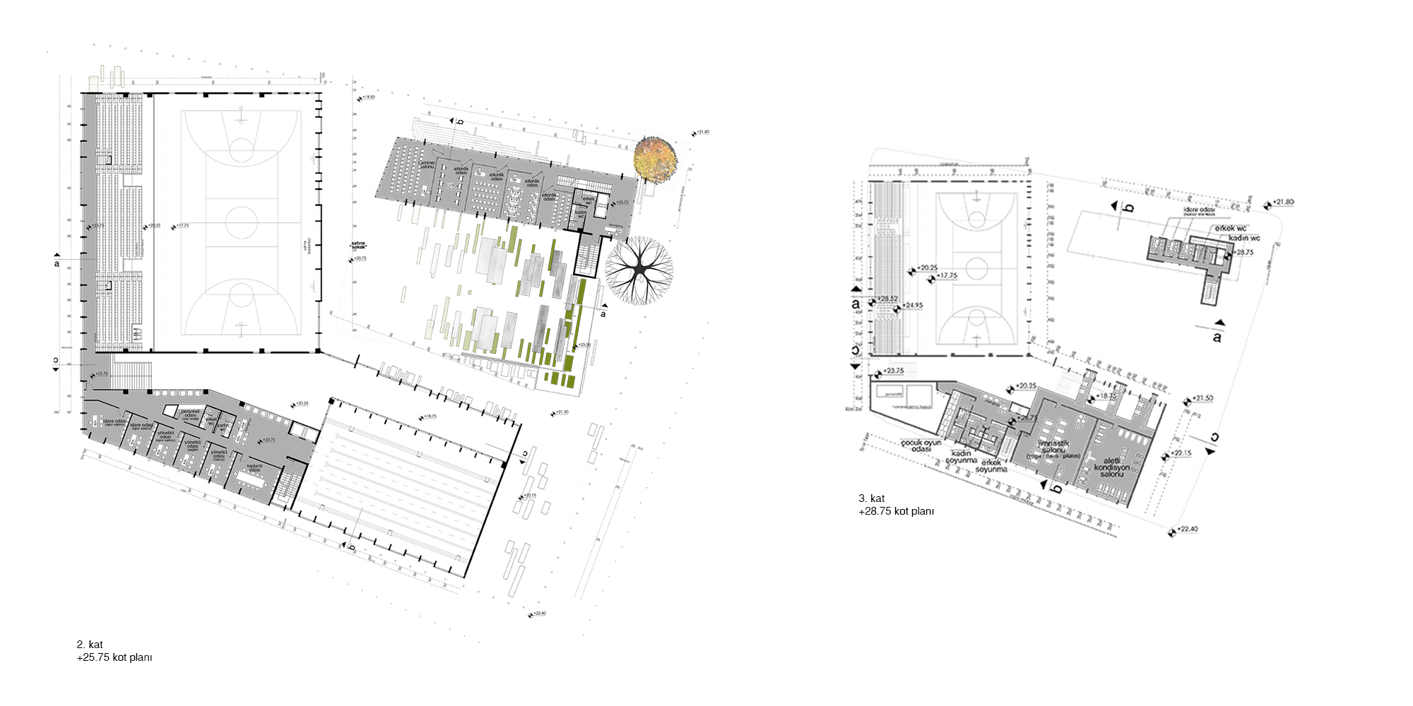
Katılımcı, Caferağa Spor ve Kültür Merkezi Mimari Proje Yarışması
Project Location: Kadıköy, İstanbul
Project Type: Sports Hall
Proje Tipi Grubu: Katılımcı
Tasarım Ekibi: Barış Dönmez
Yardımcı: Çağla Abdu Dönmez