5/16
Paylaş
Resmi Orjinal Boyutunda Göster
3. Mansiyon
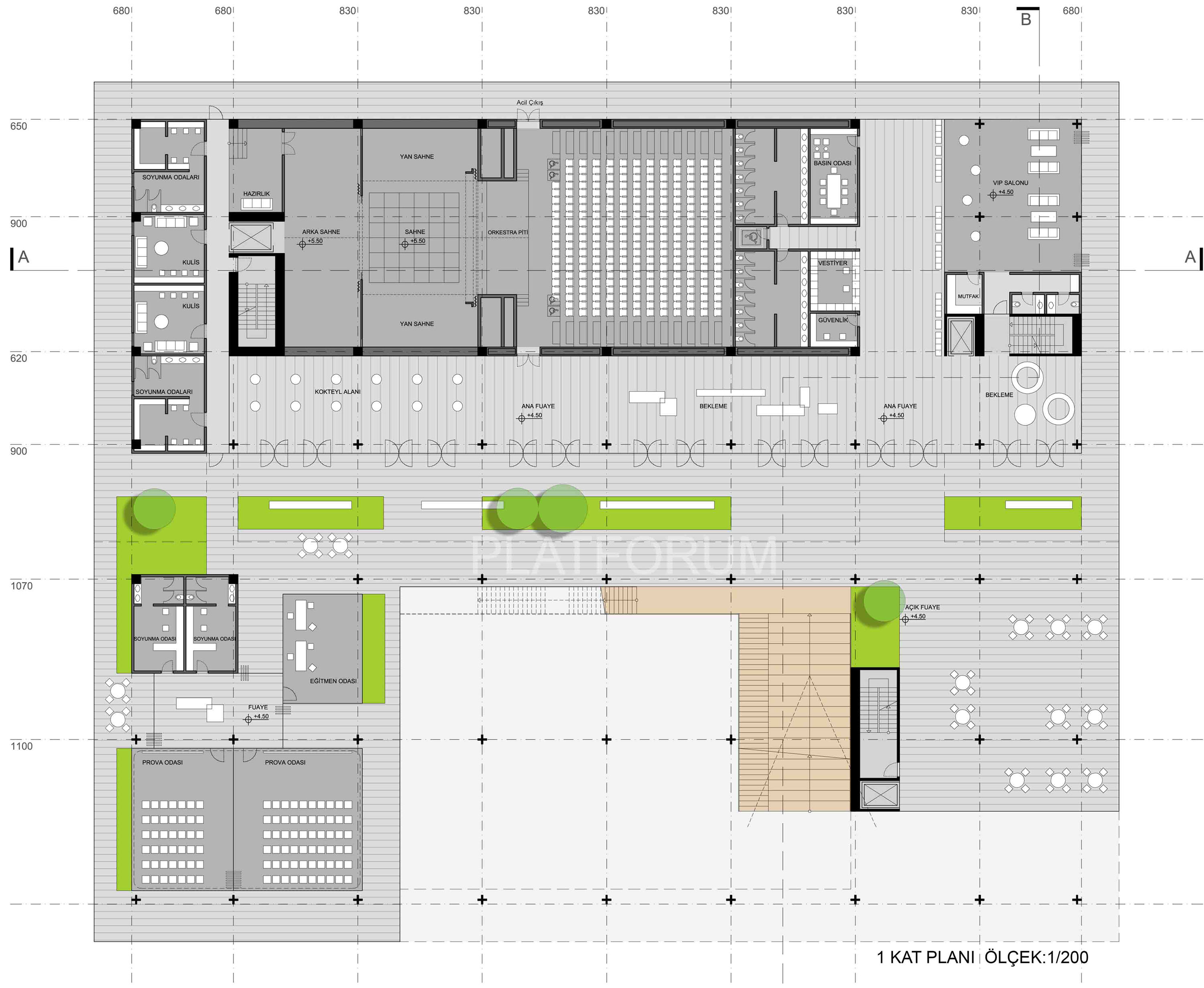
Project Location: Gaziantep, Şehitkamil
Project Type: Cultural Center
Proje Tipi Grubu: 3. Mansiyon
Tasarım Ekibi: Tolga Şentürk, Regaip Adem
Consultant: Uygar Şentürk, Burhan Aydınkal, İsmail Çelik, Gül Yücel