5/16
Paylaş
Resmi Orjinal Boyutunda Göster
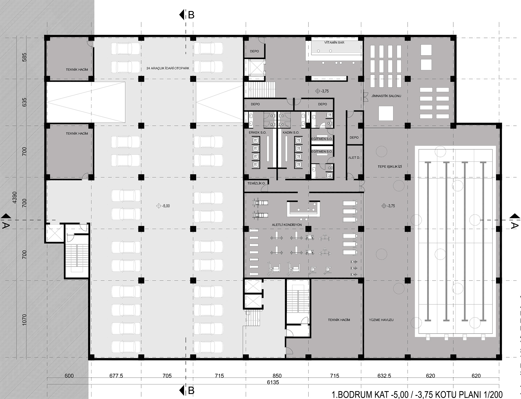
Katılımcı, Caferağa Spor ve Kültür Merkezi Mimari Proje Yarışması
Proje Yeri: İstanbul, Kadıköy
Proje Tipi: Spor Salonu
Proje Tipi Grubu: Katılımcı
Tasarım Ekibi: Birge Yıldırım Okta, Fatma Tuğba Okcuoğlu Fırat, Gürkan Okta, Halit Levent Fırat
Danışman: Hakan Çatalkaya, Volkan Okta