11/17
Paylaş
Resmi Orjinal Boyutunda Göster
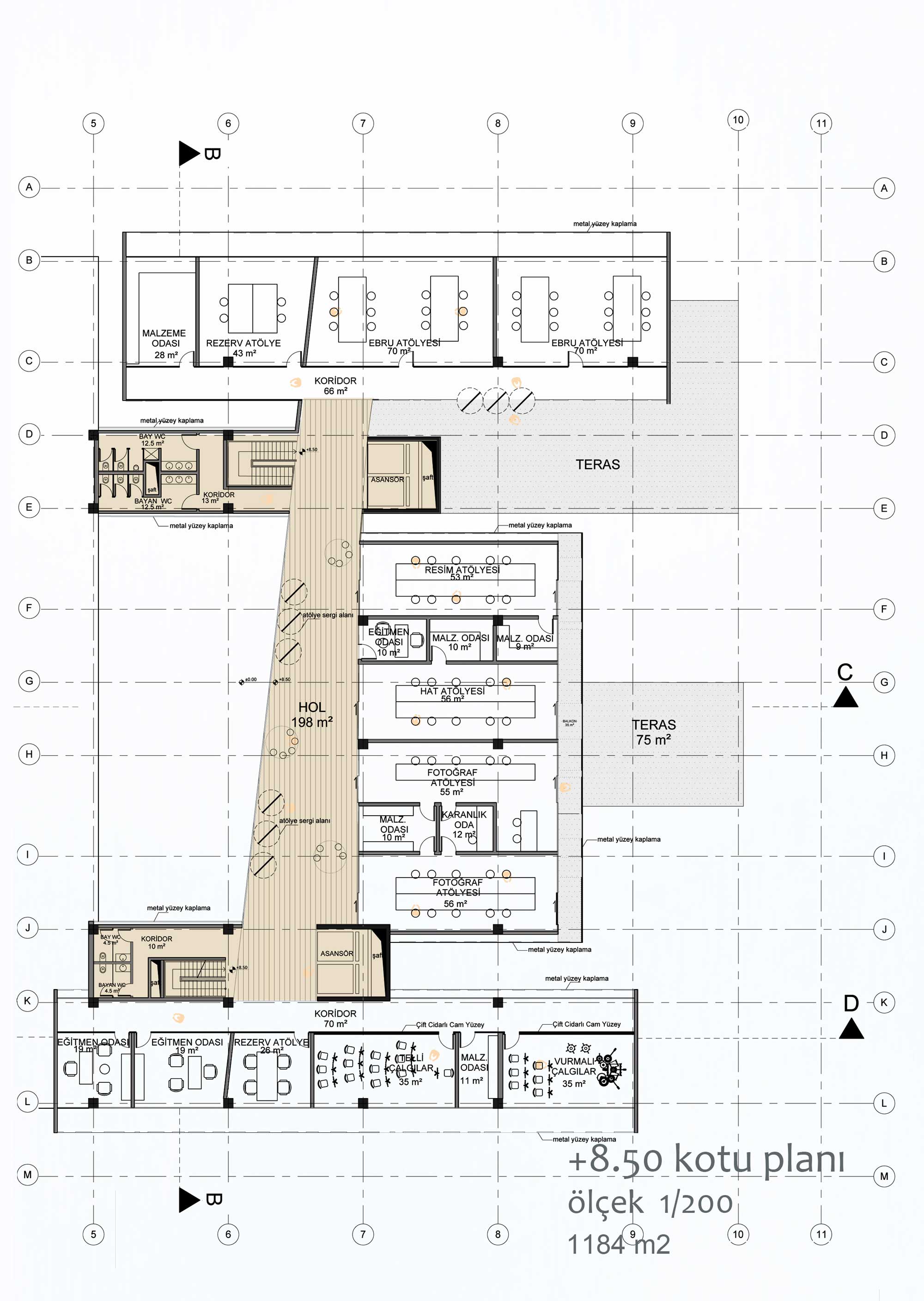
2. Mansiyon, Şehitkamil Belediyesi Sanat Merkezi Yarışması
Project Location: Gaziantep, Şehitkamil
Project Type: Cultural Center
Proje Tipi Grubu: 2. Mansiyon
Tasarım Ekibi: Murat Sönmez, Mehmet Arıdoğan, Zeliha Burcu Demirci, Ayşe Asena Aras
Consultant: Yüksel Konkan, Melih Özüner, Kemal Aykaç
Yardımcı: Mehmet Burak Konkan, Beyza Nur Batı, Suna Ayyüce Yalçın, Parisa Mobaraki, Furkan Balcı, Utku Doğanay, Yusuf Yılmaz