10/27
Paylaş
Resmi Orjinal Boyutunda Göster
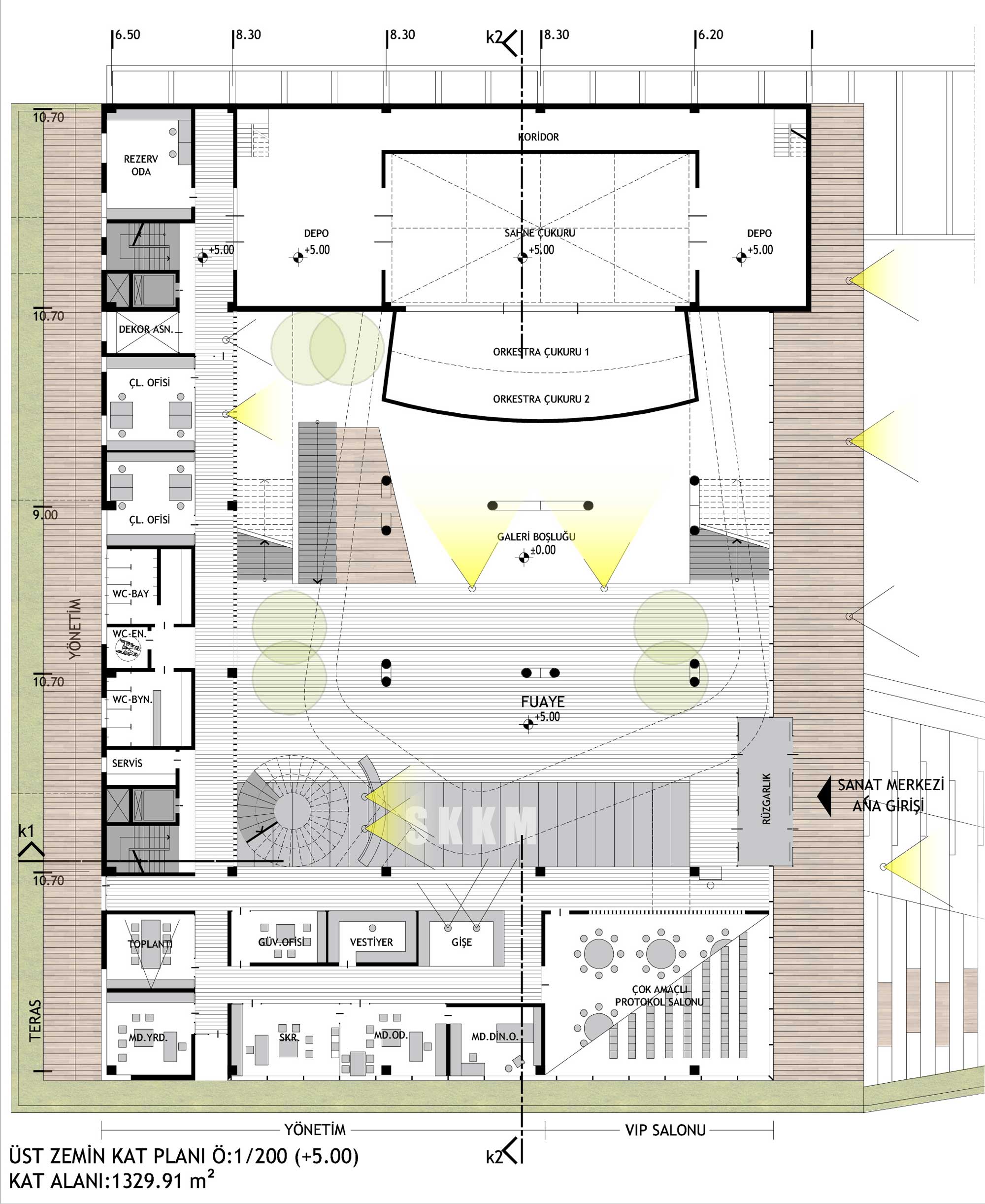
Satın Alma, Şehitkamil Belediyesi Sanat Merkezi Yarışması
Proje Yeri: Gaziantep, Şehitkamil
Proje Tipi: Kültür Merkezi
Proje Tipi Grubu: Satın Alma
Tasarım Ekibi: Emrah Bal, Soner Akçam, Ahmet İlyas Sözeri
Danışman: Can Sırlıbaş