22/26
Paylaş
Resmi Orjinal Boyutunda Göster
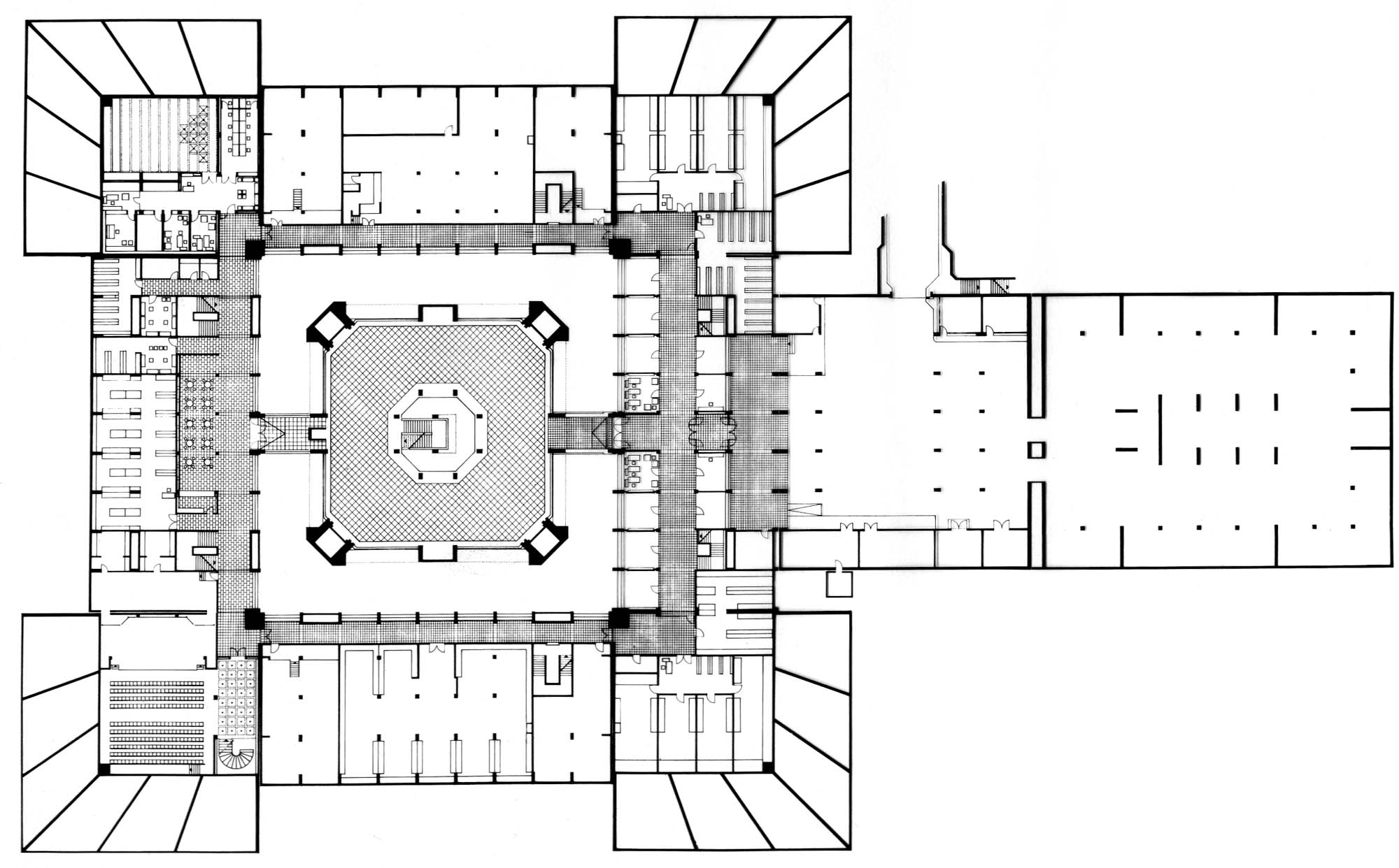
Ankara Atatürk Kültür Merkezi
Proje Yeri: Ankara, Altındağ
Proje Ofisi: Erkal Mimarlık
Proje Tipi: Kültür Merkezi
Proje Tipi Grubu: Kültür
Tasarım Ekibi: Coşkun Erkal, Filiz Erkal
İşveren: Bayındırlık Bakanlığı, Kültür Bakanlığı
Yardımcı: Sevinç Çırak, Deniz Güvendi, Leyla Gürler, İlhan Çamur, Süreyya Doğan, Ertan Yollu, Celal Abdi Güzer, Taner Erdoğan, Metin Kutluay, Sim Löker, Betül Gemalmaz, Fatoş Baştüzel, Oya Özger
Ana Yüklenici: Emek İnşaat
Peyzaj Mimarlığı: Yüksel Öztan
Statik Projesi: Hami Gürün
Mekanik Projesi: Mustafa Atukalp
Elektrik Projesi: Serter Üçer, Güngör Dirican
Tesisat Projesi: Mustafa Atukalp
Fotoğraf: Melih Uçar, Ozan Erkal
Mimari Mesleki Kontrollük: Erkal Mimarlık
Proje Başlangıç Yılı: 1981
Proje Bitiş Yılı: 1985
İnşaat Bitiş Yılı: 1987
Arsa Alanı: 750,000 m2
Toplam İnşaat Alanı: 20,000 m²