8/23
Paylaş
Resmi Orjinal Boyutunda Göster
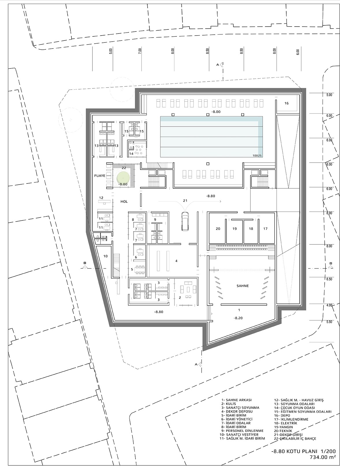
Eşdeğer Mansiyon, Caferağa Spor ve Kültür Merkezi Mimari Proje Yarışması
Project Location: İstanbul, Kadıköy
Project Type: Sports Hall
Proje Tipi Grubu: Eşdeğer Mansiyon
Tasarım Ekibi: Zafer Akdemir, Feride Önal, Hasan Taştan
Consultant: Başak Kılıçbeyli, Fikret Berker, Mustafa Kemal Sevindir, Sayat Tulumciyan, Şaban Burucu
Yardımcı: Pınar Sünbül