12/30
Paylaş
Resmi Orjinal Boyutunda Göster
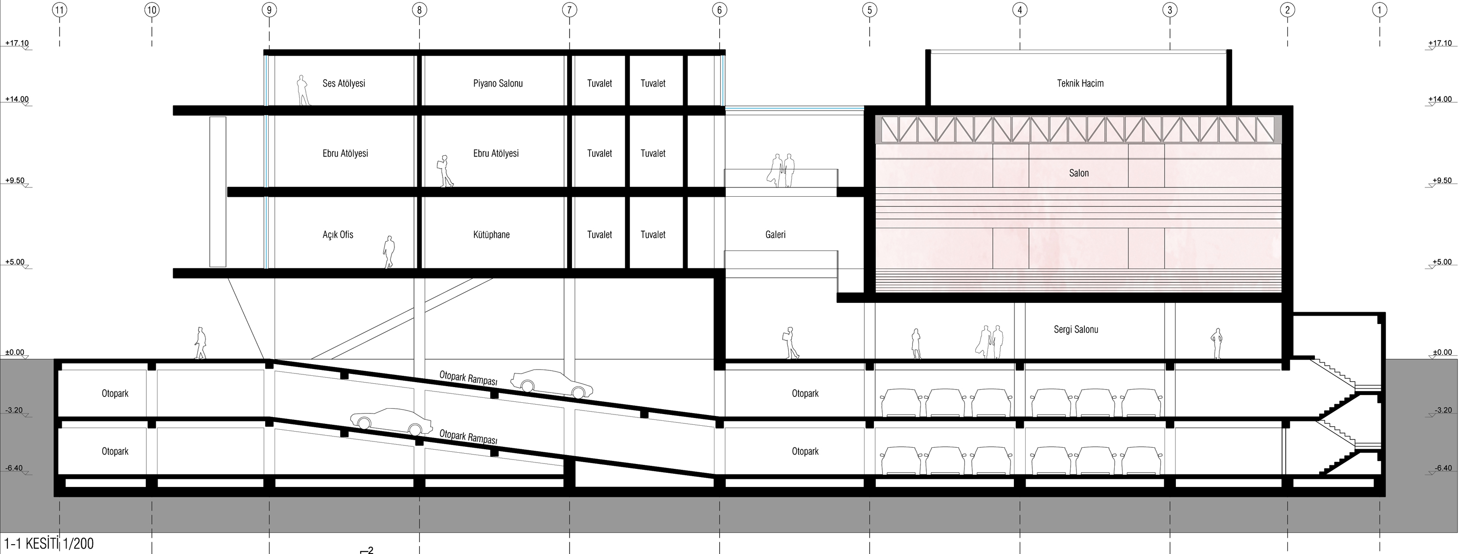
2. Ödül
Project Location: Gaziantep, Şehitkamil
Project Type: Cultural Center
Proje Tipi Grubu: 2. Ödül
Tasarım Ekibi: Hakan Deniz Özdemir, İbrahim Eyüp
Consultant: Ersin Deniz Çınar, Ahmet Boybada, Berrin Yavuz
Yardımcı: Olcay Ovalı Eyüp, Hale Keskinalemdar