9/17
Paylaş
Resmi Orjinal Boyutunda Göster
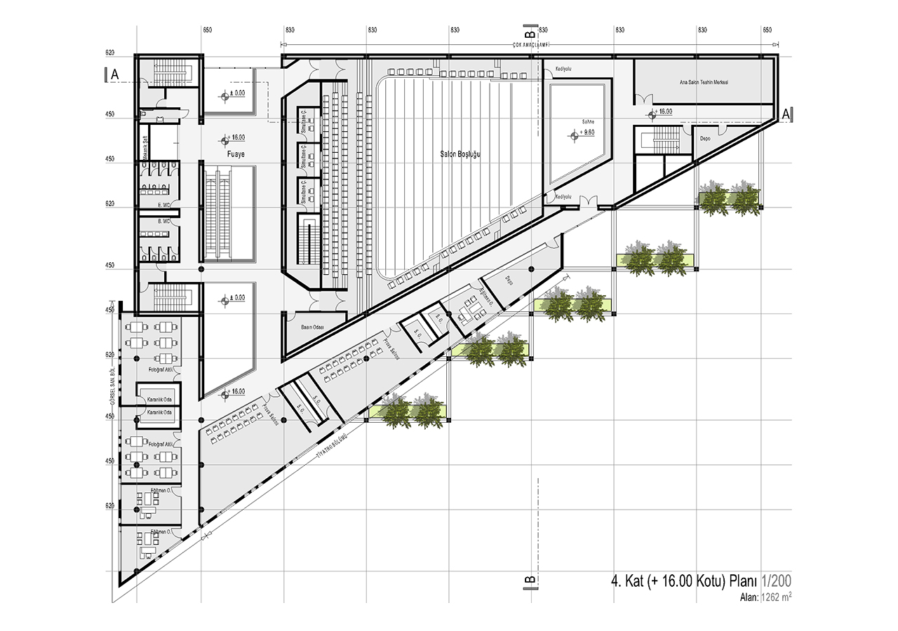
Katılımcı (Turgut Şakiroğlu), Şehitkamil Belediyesi Sanat Merkezi Yarışması
Proje Yeri: Gaziantep
Proje Tipi: Kültür Merkezi
Proje Tipi Grubu: Katılımcı
Tasarım Ekibi: Turgut Şakiroğlu
Danışman: Aptula Fevzi, Ethem Tatar, Zeki Şakiroğlu, Said Yiğitbaşı