6/17
Paylaş
Resmi Orjinal Boyutunda Göster
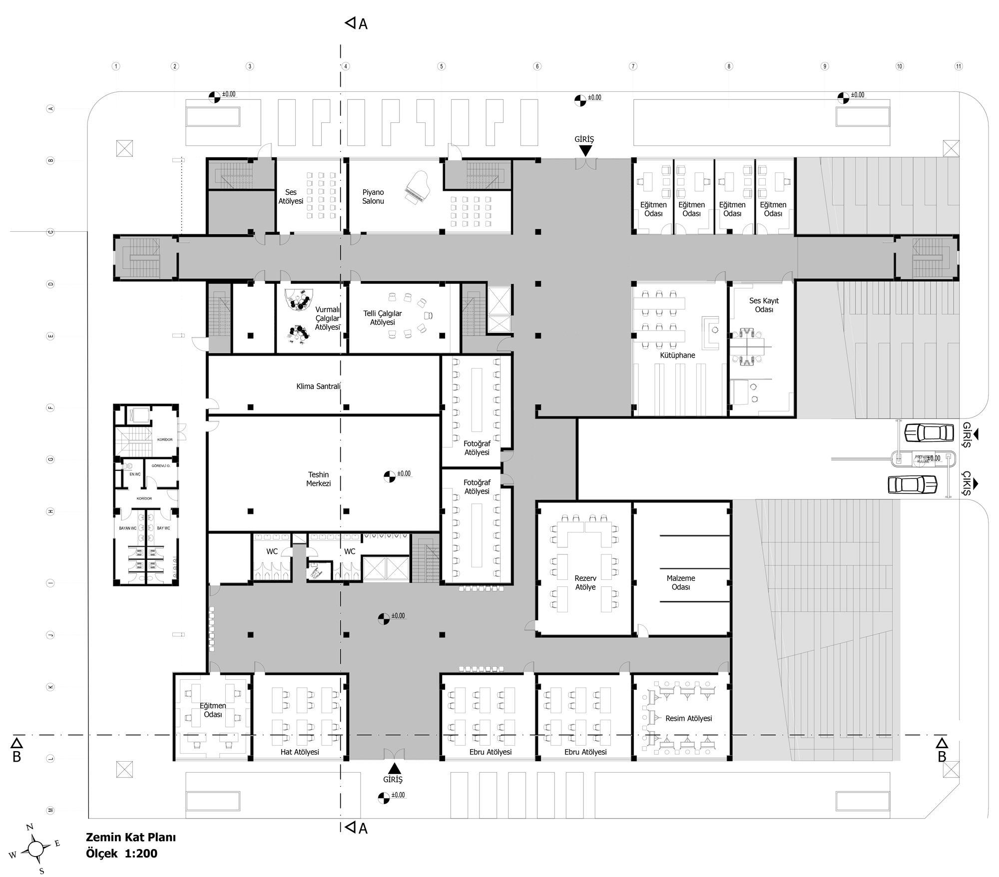
Katılımcı, Şehitkamil Belediyesi Sanat Merkezi Yarışması
Proje Yeri: Gaziantep
Proje Tipi: Kültür Merkezi
Proje Tipi Grubu: Katılımcı
Tasarım Ekibi: Derya Bayar, Morteza Kabiri, Umut Ersoy, Sara Rasouli, Barış Özgürcan Pozanti