45/45
Paylaş
Resmi Orjinal Boyutunda Göster
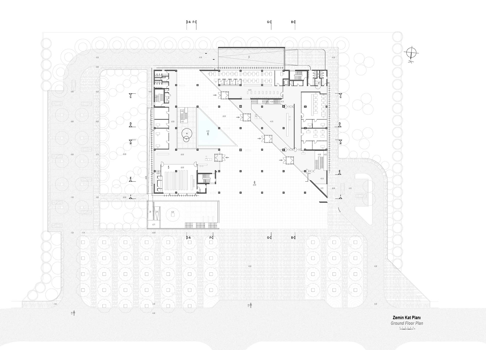
Diyarbakır Yenişehir Belediye Binası
Proje Yeri: Diyarbakır, Yenişehir
Proje Ofisi: Uygur Mimarlık
Proje Tipi: Belediye Hizmet Binası
Proje Tipi Grubu: Kamu
Tasarım Ekibi: Semra Uygur, Özcan Uygur
İşveren: Diyarbakır Belediyesi
Yardımcı: Necati Seren, Güliz Erkan, Emine Kirman, Hüseyin Atakan, Ebru Can Bilhan
Peyzaj Mimarlığı: Can Kubin, Promim Çevre Düzenleme, Kentsel Tasarım
Statik Projesi: Danyal Kubin, Prota Mühendislik
Mekanik Projesi: Hakan Yazman, Yazman Mühendislik
Elektrik Projesi: Kemal Ovacık, Ovacık Mühendislik
Altyapı Projesi: Barbaros Bıçakcı, Birim Alt YApı
Fotoğraf: Cemal Emden
Proje Başlangıç Yılı: 2012
Proje Bitiş Yılı: 2013
İnşaat Başlangıç Yılı: 2013
İnşaat Bitiş Yılı: 2016
Toplam İnşaat Alanı: 9,893 m2