9/28
Paylaş
Resmi Orjinal Boyutunda Göster
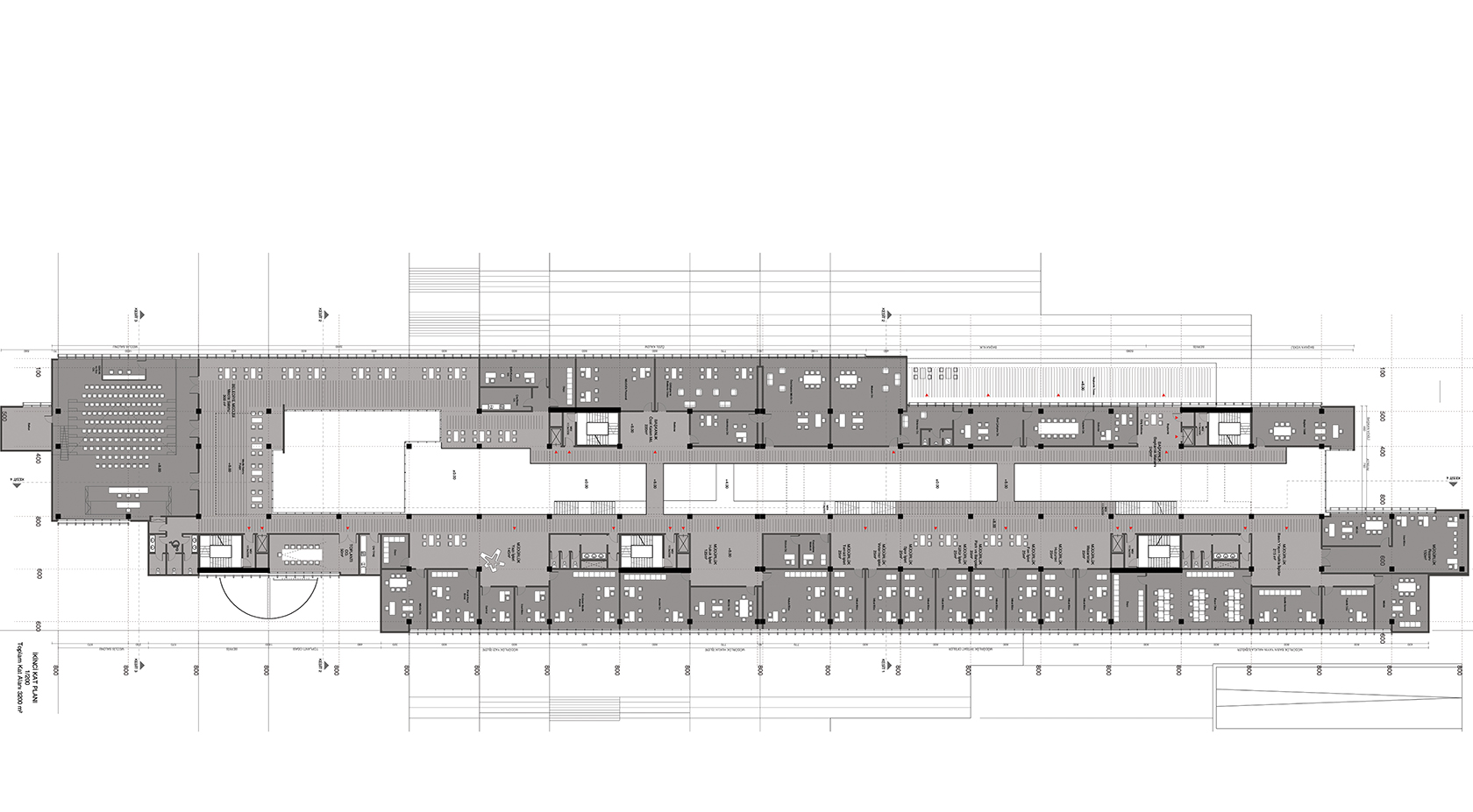
3. Ödül, İnegöl Belediyesi Hizmet Binası Mimari Proje Yarışması
Proje Yeri: İnegöl
Proje Ofisi: Tamirci Architects, Studio Evren Başbuğ
Proje Tipi: Belediye Hizmet Binası
Proje Tipi Grubu: 3. Ödül
Tasarım Ekibi: Can Tamirci, Hüseyin Komşuoğlu, Can Özcan, Oğuzhan Zeytinoğlu, Evren Başbuğ
Danışman: Başak Taş Özdemir, Abuzer Sarı, Kamber Korkmaz, Dilşad Kurtoğlu
Yardımcı: Sezin Taner, Hakan Taş