9/21
Paylaş
Resmi Orjinal Boyutunda Göster
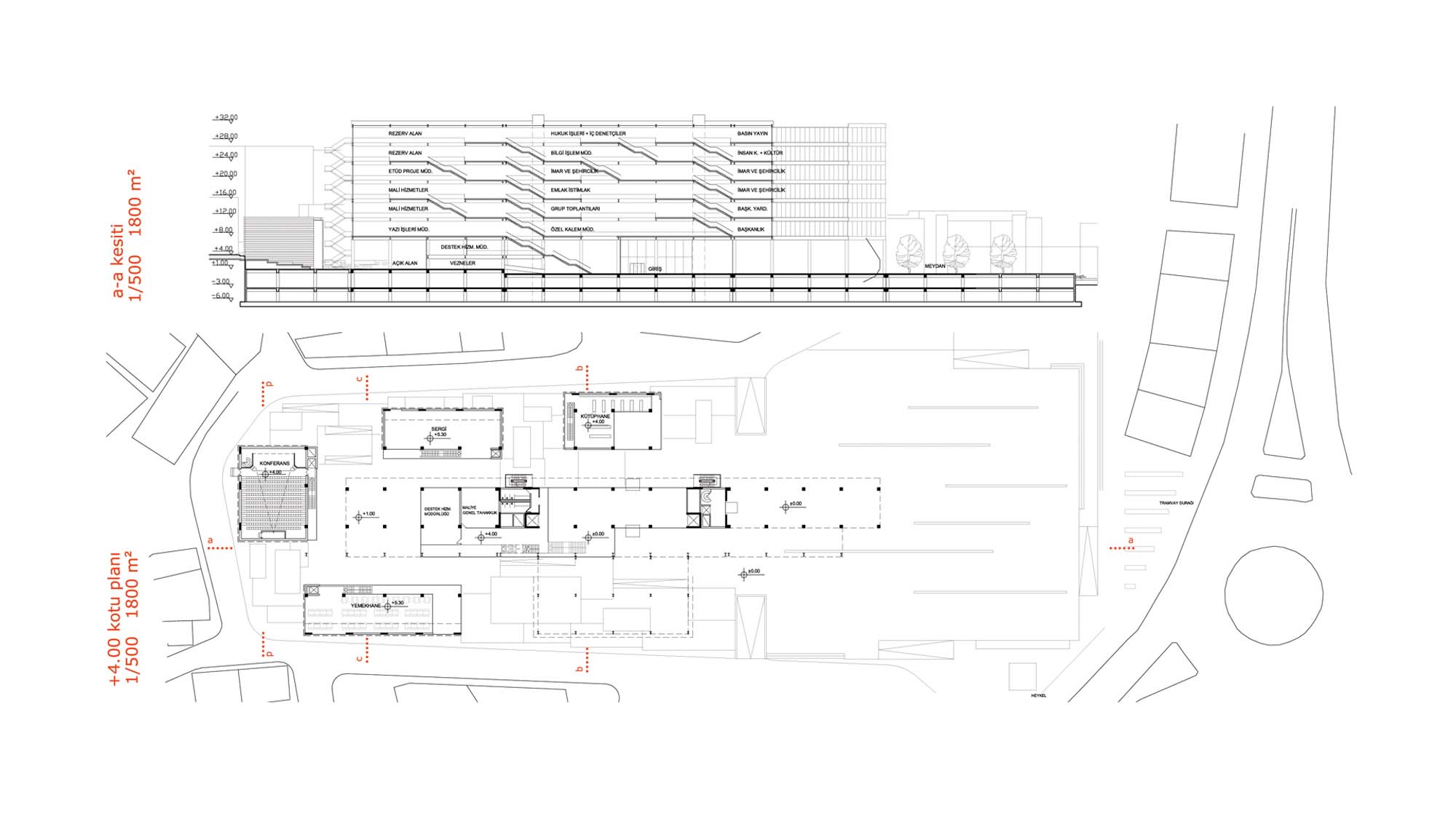
Denizli Belediyesi Hizmet Binası ve Çevresi Mimari Proje Yarışması
Proje Yeri: Denizli
Proje Tipi: Belediye Hizmet Binası
Proje Tipi Grubu: 4. Mansiyon
Tasarım Ekibi: Can Tamirci, Rıdvan Emre Öztürk, Gül Ertekin
İşveren: Denizli Büyükşehir Belediyesi
Proje Başlangıç Yılı: 2009
Proje Bitiş Yılı: 2009
Arsa Alanı: 32,950 m2