14/17
Paylaş
Resmi Orjinal Boyutunda Göster
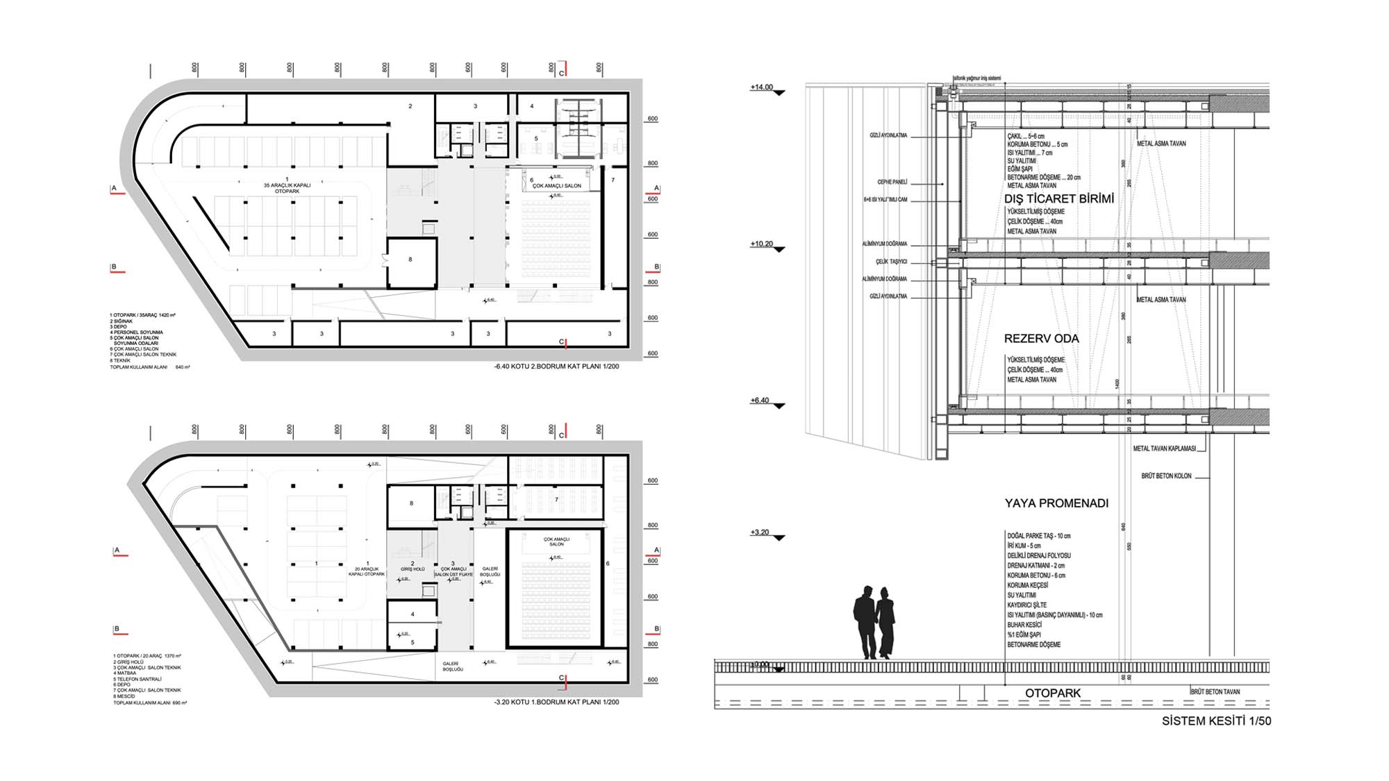
Düzce Ticaret ve Sanayi Odası Hizmet Binası Ulusal Mimari Proje Yarışması
Proje Yeri: Düzce
Proje Tipi: Ofis
Proje Tipi Grubu: Katılımcı
Tasarım Ekibi: Can Tamirci, Mehmet Metin Polat, Dicle Hökenek, Serkan Uğuz, Amina Rezoug
İşveren: Bursa Sanayi ve Ticaret Odası
Proje Başlangıç Yılı: 2012
Proje Bitiş Yılı: 2012
Arsa Alanı: 9,770 m2