15/15
Paylaş
Resmi Orjinal Boyutunda Göster
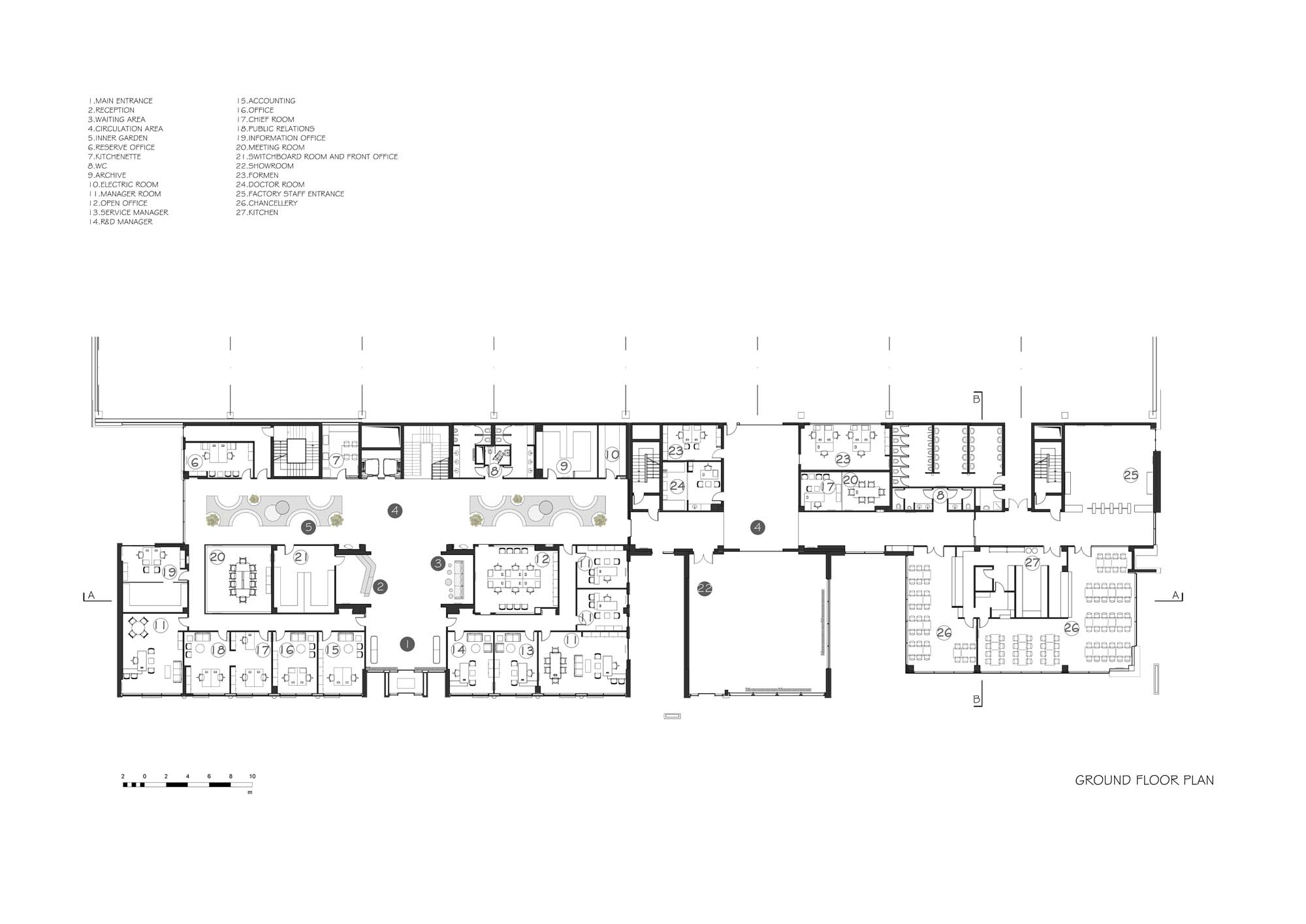
Delta Makine ve Spektra Jeoteknik Fabrika ve Genel Merkez Binası
Proje Yeri: Ankara, Sincan
Proje Ofisi: DesignON
Proje Tipi: Fabrika , Ofis
Proje Tipi Grubu: Endüstriyel, Ticari
Tasarım Ekibi: Mert Işık, Bedran U. Kılavuz
Mimari Proje Ekibi: Mert Işık, Yasemin ışık, Baran Gökgöz
İşveren: Delta Makine
Ana Yüklenici: DesignON
Peyzaj Mimarlığı: Yasemin ışık
İç Mekan Projesi: Seçil Onuk
Statik Projesi: EFK Mühendislik
Mekanik Projesi: GMD Mühendislik
Elektrik Projesi: GMD Mühendislik
Fotoğraf: Arda Ayderman
Proje Başlangıç Yılı: 2013
Proje Bitiş Yılı: 2013
İnşaat Başlangıç Yılı: 2014
İnşaat Bitiş Yılı: 2014
Arsa Alanı: 370,000 m²
Toplam İnşaat Alanı: 23,000 m²