27
27/46
Paylaş
Resmi Orjinal Boyutunda Göster
Eşdeğer Mansiyon
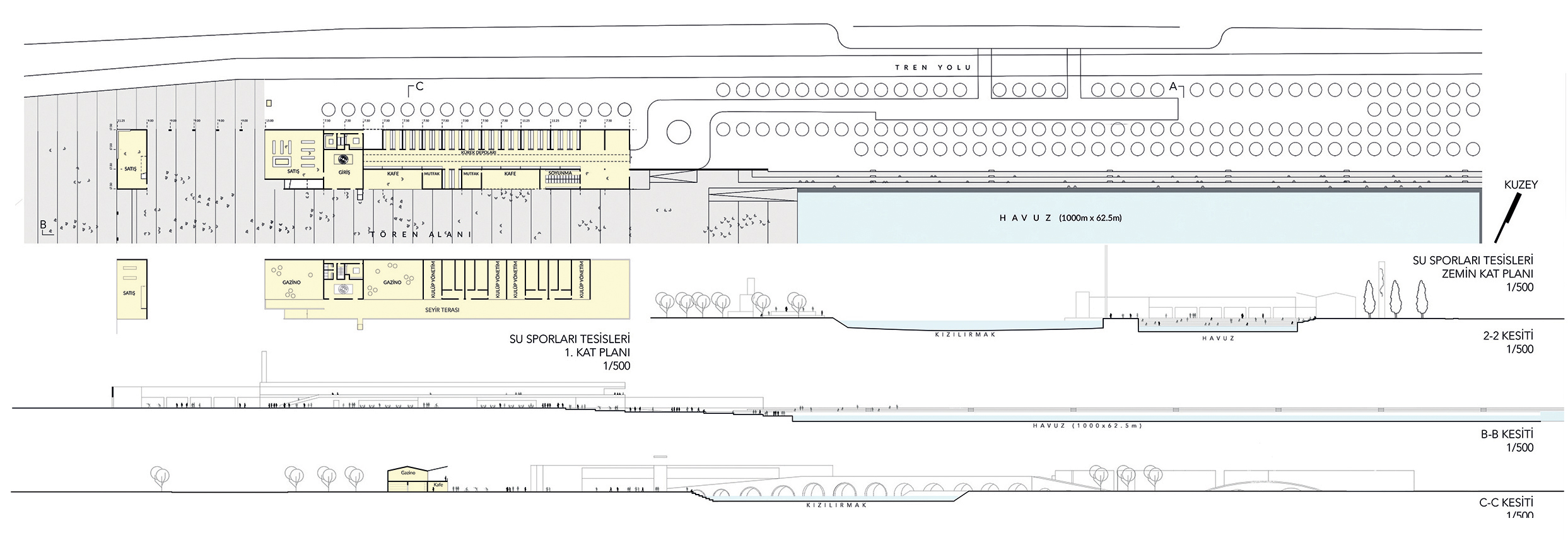
Proje Yeri: Sivas
Proje Tipi: Kentsel Tasarım
Proje Tipi Grubu: Eşdeğer Mansiyon
Tasarım Ekibi: Nevzat Oğuz Özer, Yasemen Say Özer, Ege Özer, Özlem Kuzgun Kırak, Enes Aksu
Danışman: Selahattin Ulubay, İbrahim Zafer Say
Yardımcı: Nurdan Sezgin, Ahmet Boz, Yasin Özmen