9/11
Paylaş
Resmi Orjinal Boyutunda Göster
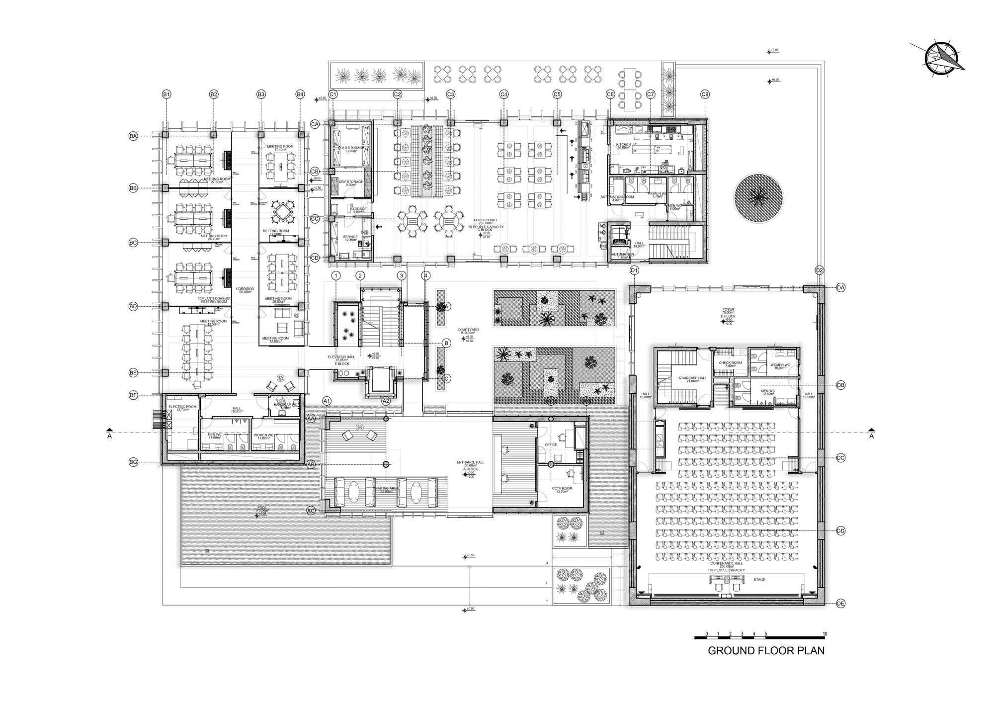
Tosyalı Holding Yönetim Merkezi
Proje Yeri: Cezayir, Oran, Afrika
Proje Ofisi: Bakırküre Mimarlık
Proje Tipi: Ofis
Proje Tipi Grubu: Ticari
Tasarım Ekibi: Gürhan Bakırküre
İşveren: Tosyalı Holding
Yardımcı: Mehmet Ay, Samprie Chatziachmet
Ana Yüklenici: Bakırküre Mimarlık
Proje Başlangıç Yılı: 2015
Proje Bitiş Yılı: 2016
Toplam İnşaat Alanı: 4,500 m²