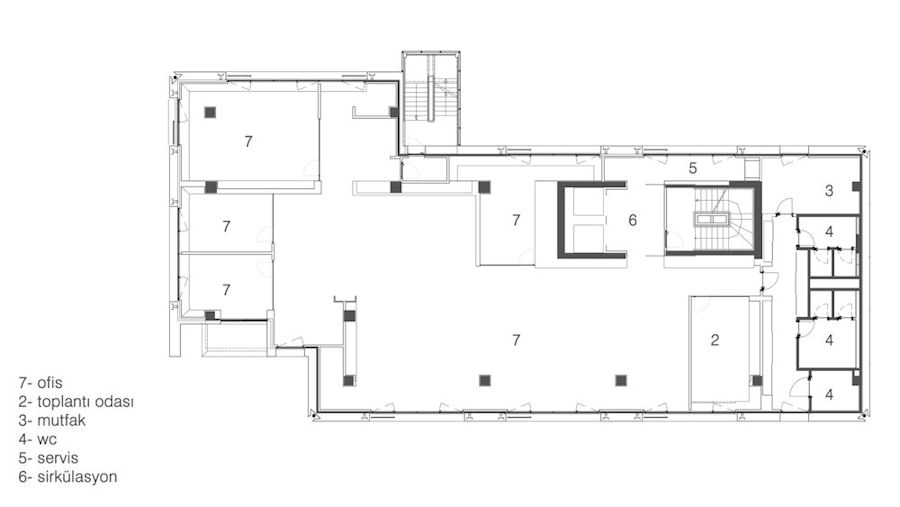
Birinci Kat Planı
13/15
Paylaş
Resmi Orjinal Boyutunda Göster
Garanti Hizmet Binası
Project Location: Etiler, İstanbul
Project Office: CM Mimarlık
Project Type: Offices
Tasarım Ekibi: Cem Sorguç
Employer: Garanti Yatırım Menkul Kıymetler A.Ş.
Yardımcı: Tolga Yağlı, Seda Kayalar, Çağrı Küçükay, Barış Kıldiş
Structural Project: MPI Mühendislik Proje İnşaat
Mechanical Project: Total Teknik Mekanik Elektronik
Electrical Project: Tasarım Proje
Photography: Cemal Emden
Project Start Date: 2008
Project End Date: 2009
Construction Start Date: 2009
Construction End Date: 2010
Building Plot Area: 1398 m²
Total Construction Area: 3832 m²