38/44
Paylaş
Resmi Orjinal Boyutunda Göster
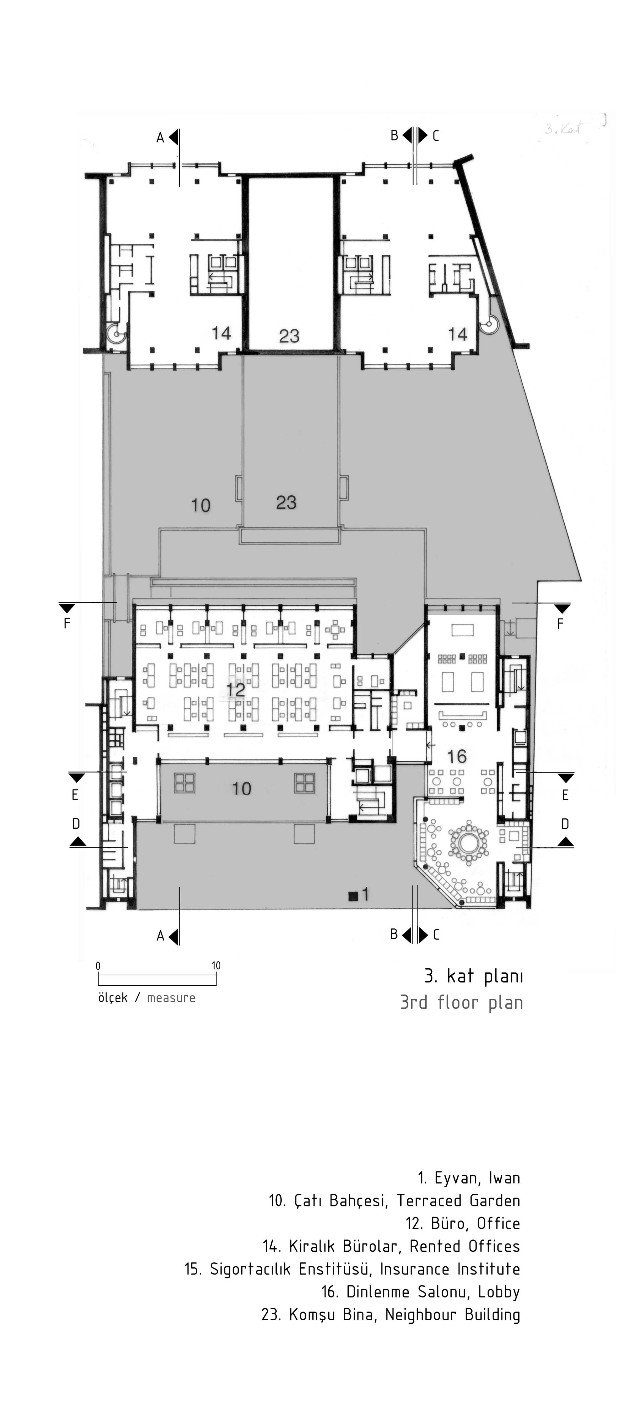
Milli Reasürans T.A.Ş. Genel Müdürlük Binası
Project Location: Şişli, İstanbul
Project Type: Exhibition Hall / Gallery
Proje Tipi Grubu: Kültür
Tasarım Ekibi: Şandor Hadi, Sevinç Hadi
Structural Project: Metin Erdemli
Photography: Murat Germen
Project Start Date: 1985
Project End Date: 1987
Construction Start Date: 1987
Construction End Date: 1992
Building Plot Area: 4,505 m2
Total Construction Area: , 35,015 m2