8/10
Paylaş
Resmi Orjinal Boyutunda Göster
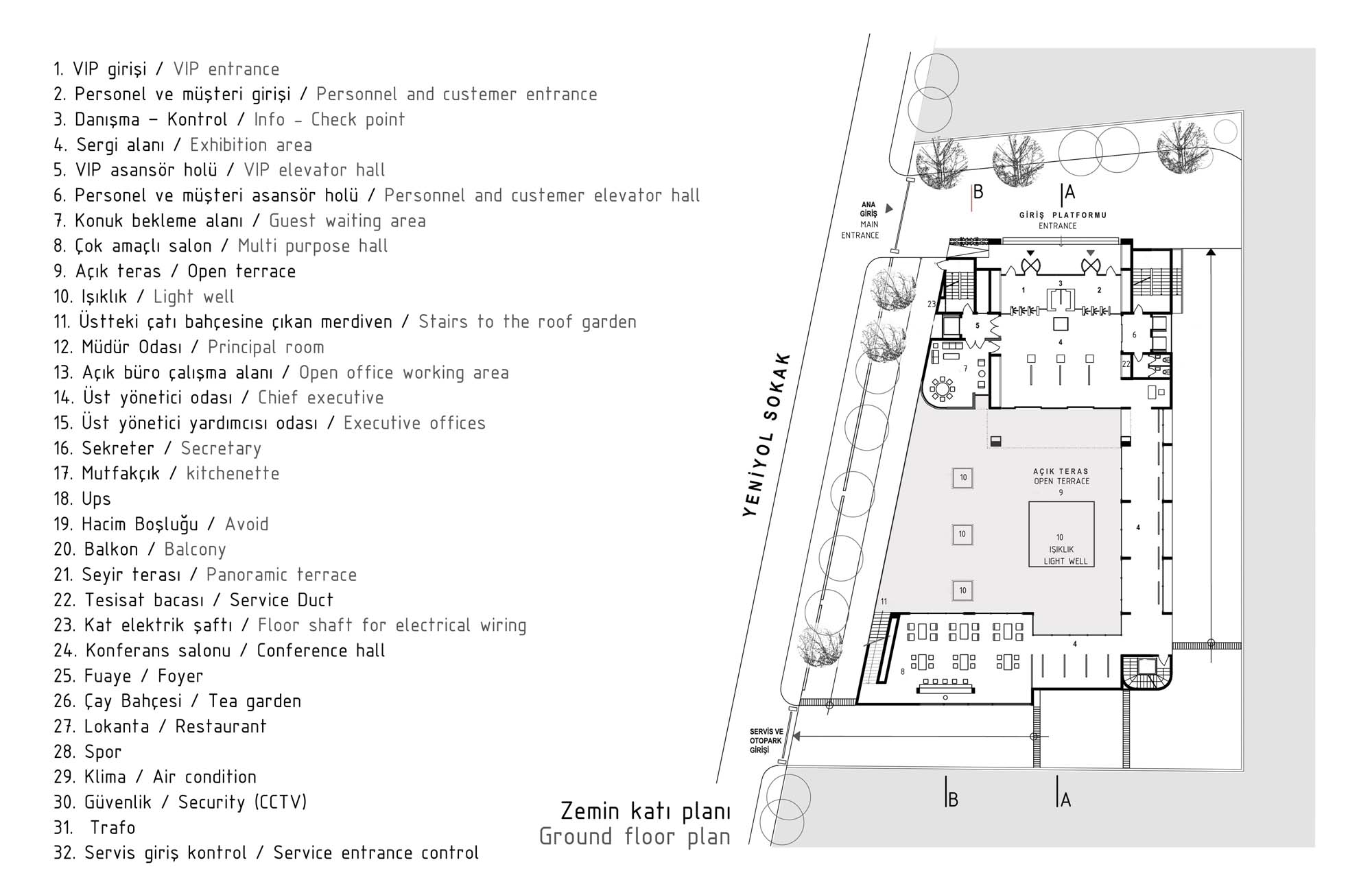
Sinpaş Genel Müdürlük Binası Projesi
Project Location: İstanbul, Beşiktaş
Project Type: Offices
Proje Tipi Grubu: Commercial
Tasarım Ekibi: Sevinç Hadi
Project Start Date: 2003
Project End Date: 2003