31/32
Paylaş
Resmi Orjinal Boyutunda Göster
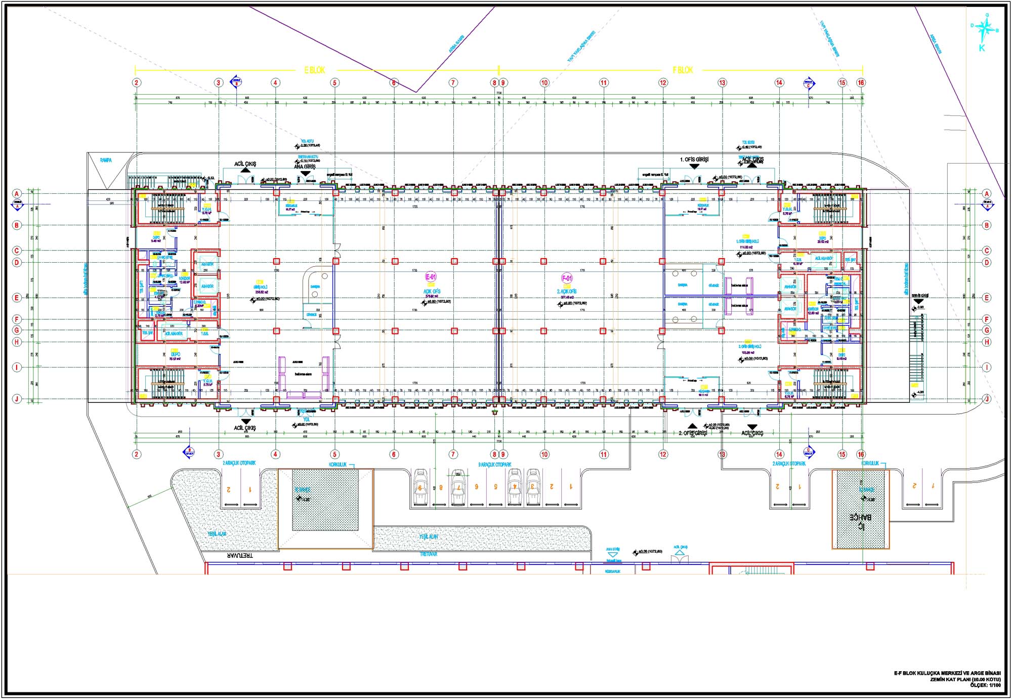
Hacettepe Üniversitesi Kuluçka Merkezi ve Ar-Ge Binaları
Proje Yeri: Ankara, Çankaya
Proje Ofisi: Uğur Proje
Tasarım Ekibi: Uğur Kınık
Mimari Proje Ekibi: Mustafa Demirbaş, Nigar İş
İşveren: Lotus Müteahhitlik
Yardımcı: Enver Ünlüol, Ergün Murat Kumcu
Ana Yüklenici: Uğur Proje
Peyzaj Mimarlığı: Serkan Uzunoğlu
Proje Yöneticisi: Uğur Kınık
Statik Projesi: Deniz Emirgan
Mekanik Projesi: Bilal Ayhan
Elektrik Projesi: M. Levent Kelepir
Tesisat Projesi: Bilal Ayhan
Çelik Projesi: Deniz Emirgan
Altyapı Projesi: Bilal Ayhan, Deniz Emirgan
Şantiye Yöneticisi: Yalçın Pınar
Proje Başlangıç Yılı: 2013
Proje Bitiş Yılı: 2013
İnşaat Başlangıç Yılı: 2013, 2015
Arsa Alanı: 33,138 m2
Toplam İnşaat Alanı: 57,629 m2