17/22
Paylaş
Resmi Orjinal Boyutunda Göster
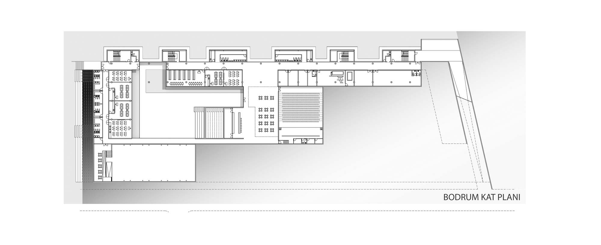
Gebze Ali Nuri Çolakoğlu Anadolu Teknik ve Endüstri Meslek Lisesi
Proje Yeri: Gebze, Kocaeli (İzmit)
Proje Ofisi: Norm Mimarlık
Proje Tipi: Lise / Ortaöğretim
Proje Tipi Grubu: Eğitim
Tasarım Ekibi: Esin Tercan, Nedim Erdal Özyurt, Ahmet Tercan
Mimari Proje Ekibi: Esin Tercan, Aslıhan Kemer, Yiğit Yılmaz, Çetin Çetkin, Ahmet Korfalı, Serhan Aydoğdu, Neslihan Ağaoğlu
İşveren: Çelik İhracatçıları Birliği
Ana Yüklenici: Akser İnşaat
Proje Yöneticisi: Norm Mimarlık
Statik Projesi: Ramazan ​Kurt, RMZ Yapı Mühendislik
Mekanik Projesi: Turgut Bozkurt, Ekin Mühendislik
Elektrik Projesi: Yaşar Helvayiyen, Ekin Mühendislik
Fotoğraf: Alp Eren, ALTKAT Architectural Photography
Proje Başlangıç Yılı: 2011
Proje Bitiş Yılı: 2012
İnşaat Başlangıç Yılı: 2012
İnşaat Bitiş Yılı: 2015
Arsa Alanı: 53,000 m²
Toplam İnşaat Alanı: 12,000 m²