10/16
Paylaş
Resmi Orjinal Boyutunda Göster
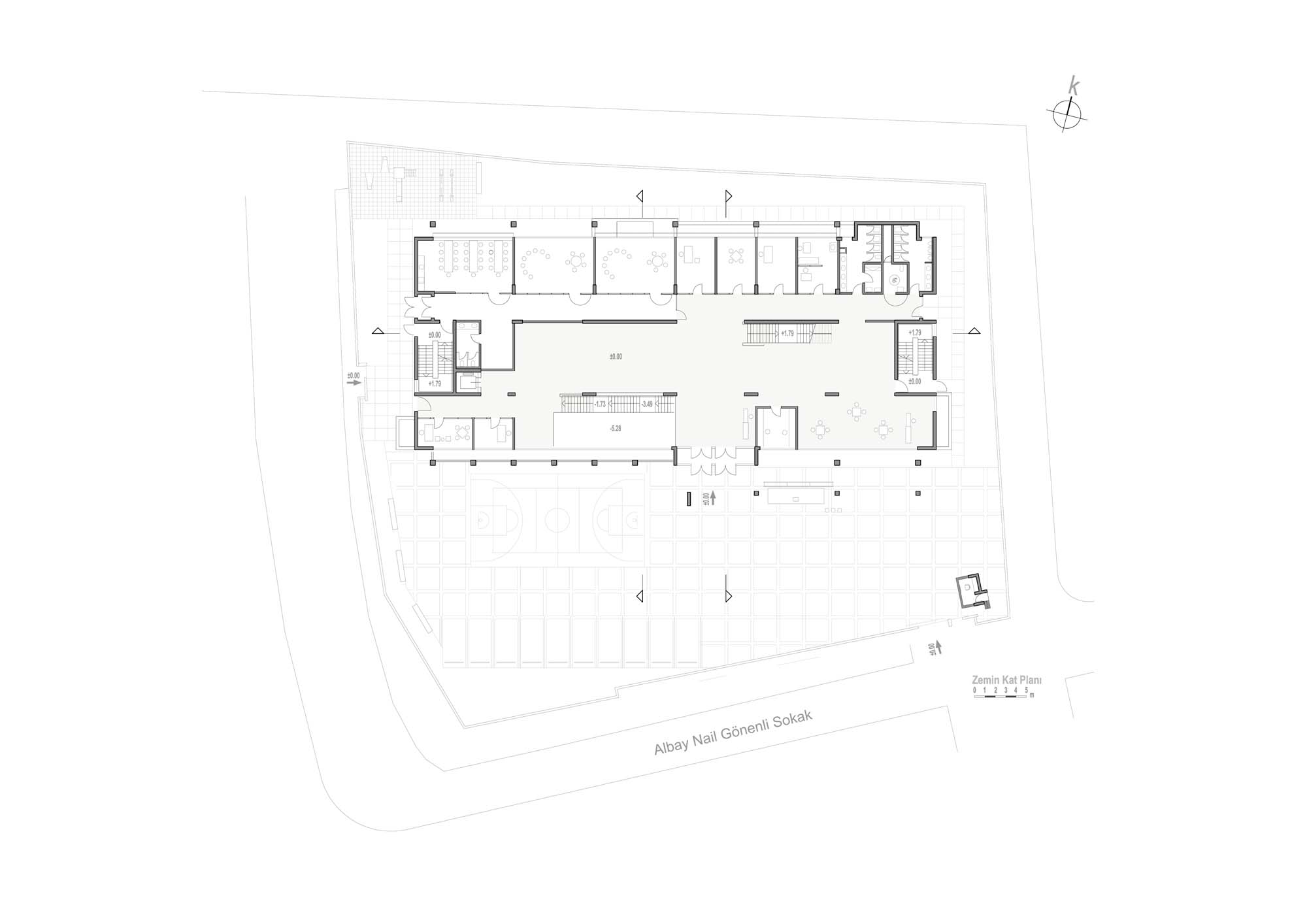
Hasan Ali Yücel İlköğretim Okulu
Project Location: Beşiktaş, İstanbul
Project Office: Uygur Mimarlık
Project Type: İlkokul
Proje Tipi Grubu: Eğitim
Tasarım Ekibi: Semra Uygur, Özcan Uygur
Employer: İstanbul Sismik Riskin Azaltılması ve Acil Durum Hazırlık Projesi (İSMEP)
Yardımcı: Necati Seren, Güliz Erkan, Hüseyin Atakan, Seda Kaplan, Ebru Can Bilhan, Eser Köken İşleyici, Zümral Aygüler Kartal, Sevda Özkan İmamoğlu
Ana Yüklenici: Nuhoğlu İnşaat
Peyzaj Mimarlığı: Derya Duman, Kemal Özgür, Can Kubin
Structural Project: Dursun Özsaraç, Levent Aksaray
Mechanical Project: Bahri Türkmen
Electrical Project: Kemal Ovacık
Project Start Date: 2011
Project End Date: 2011
Construction Start Date: 2012
Construction End Date: 2013
Building Plot Area: 2,984 m2
Total Construction Area: 5,839 m2