30/35
Paylaş
Resmi Orjinal Boyutunda Göster
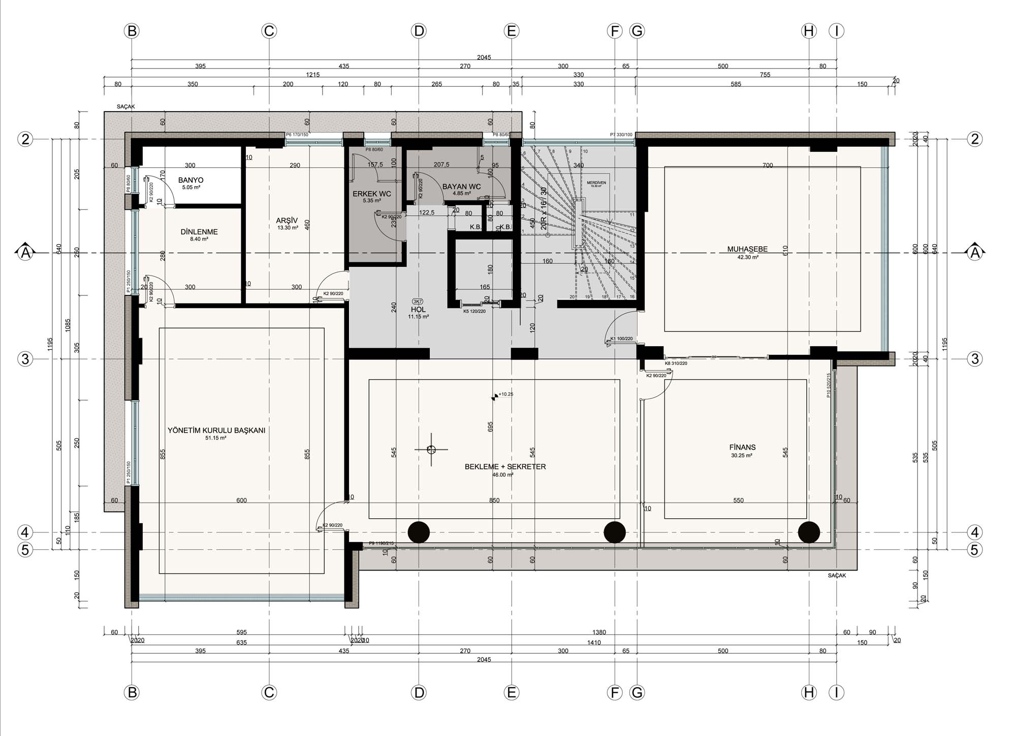
Özyavru Elektrik İdari Binası
Proje Yeri: Bornova, İzmir
Proje Ofisi: NVA Noyan Vural Architects
Proje Tipi: Ofis
Tasarım Ekibi: Noyan Vural
Statik Projesi: Salih Erdil Vural, Gizem Göçtü
Proje Başlangıç Yılı: 2010
Proje Bitiş Yılı: 2012
İnşaat Başlangıç Yılı: 2010
İnşaat Bitiş Yılı: 2012
Arsa Alanı: 653 m²
Toplam İnşaat Alanı: 1300 m²