18/22
Paylaş
Resmi Orjinal Boyutunda Göster
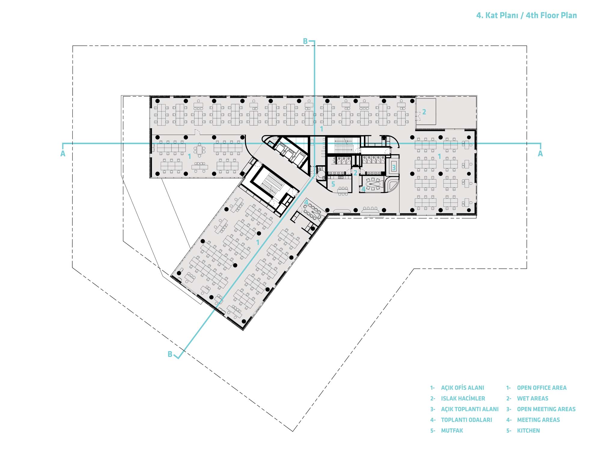
Intertech Teknopark Ar-Ge Binası
Proje Yeri: Pendik, İstanbul
Proje Ofisi: ERA Şehircilik Mimarlık
Proje Tipi: Ar-Ge Binası
Proje Tipi Grubu: Ticari
Tasarım Ekibi: Ali Hızıroğlu
İşveren: Intertech AŞ
Yardımcı: Çiğdem Duman, Müge İnci Özpolat, Uğur Yavuz, Melis Uysal, Deniz Akkoca, Burcu Özgür
Fotoğraf: Yercekim Mimari Fotograf
Proje Başlangıç Yılı: 2014
Proje Bitiş Yılı: 2014
İnşaat Başlangıç Yılı: 2014
İnşaat Bitiş Yılı: 2016
Arsa Alanı: 5,000 m²
Toplam İnşaat Alanı: 19,000 m2