21/21
Paylaş
Resmi Orjinal Boyutunda Göster
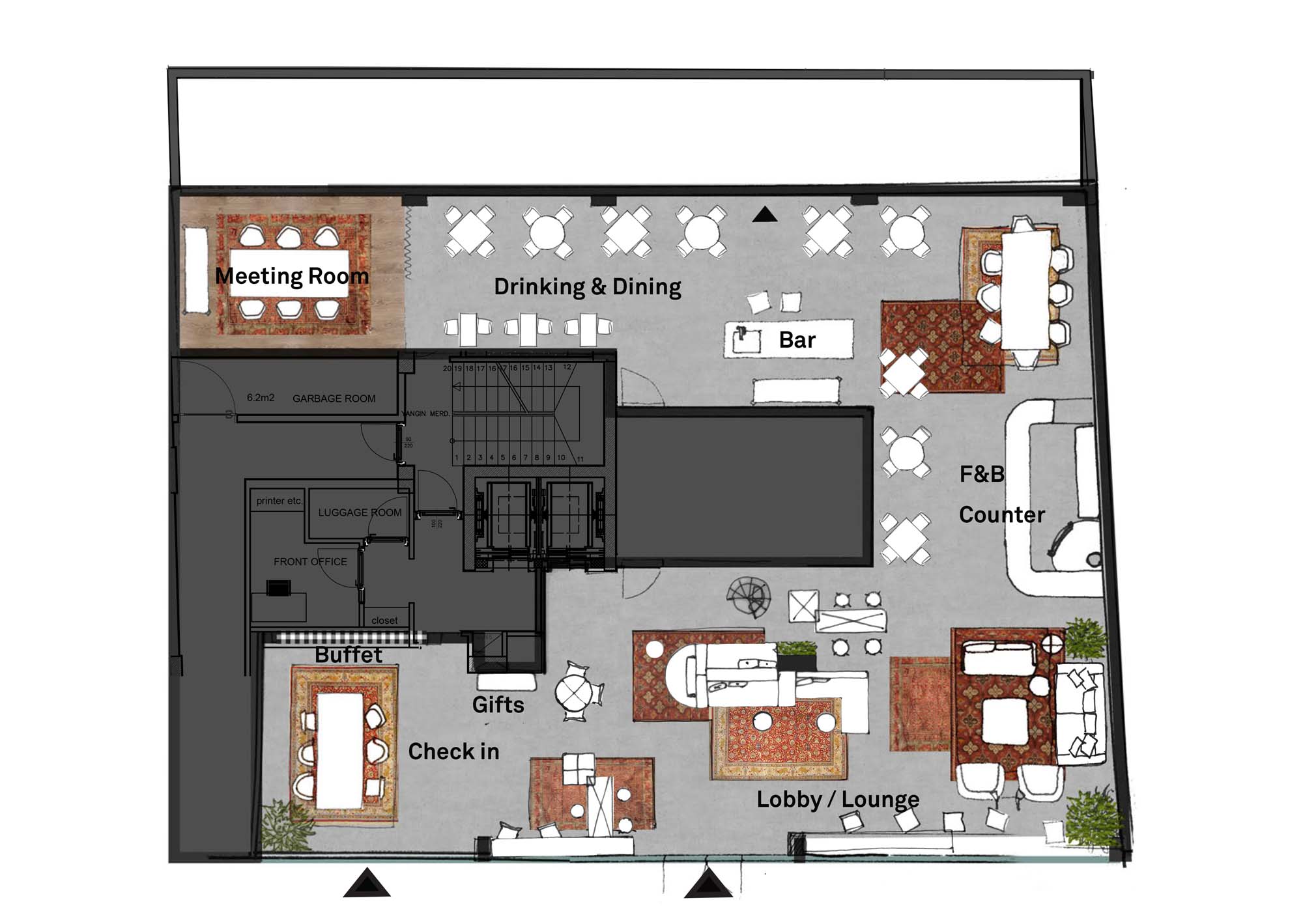
Cloud 7 Hotel Kurumsal Kimlik ve Mekan Tasarımı
Proje Yeri: Bakırköy, İstanbul
Proje Ofisi: I-AM
Proje Tipi: Otel / Motel
Proje Tipi Grubu: Konaklama
Tasarım Ekibi: Emre Kuzlu, Pero Trivunovic, Ertuğrul Yurdakul, Pınar Bilgin Unlu, Yasmin Koca, Mirza Erçin
İşveren: 4A Yapı, Kerten Group
Ana Yüklenici: 4A Yapı, I-AM
Proje Yöneticisi: Emre Kuzlu, Ertuğrul Yurdakul, Deniz Tuncer
Mimari Mesleki Kontrollük: I-AM
Proje Başlangıç Yılı: 2015
Proje Bitiş Yılı: 2015
İnşaat Başlangıç Yılı: 2015
İnşaat Bitiş Yılı: 2016
Arsa Alanı: 365 m2
Toplam İnşaat Alanı: 2,152 m2