26/34
Paylaş
Resmi Orjinal Boyutunda Göster
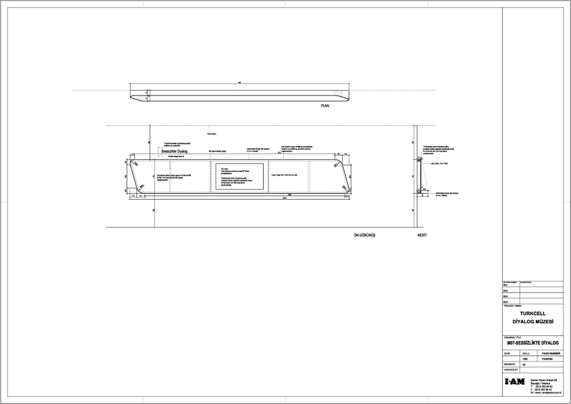
Turkcell Diyalog Müzesi
Project Location: İstanbul, Beşiktaş
Project Office: I-AM
Project Type: Museum
Proje Tipi Grubu: Commercial
Tasarım Ekibi: Ertuğrul Yurdakul, Emre Kuzlu, Pınar Ünlü, Yasmin Koca, İlknur Demirlenk, İrem Güçlü
Employer: Turkcell
Ana Yüklenici: I-AM Construct
Projcet Manager: Sinem Kurultay
Grafik Tasarım: Ertuğrul Yurdakul, Mirza Erçin
Project Start Date: 2015
Project End Date: 2016
Construction Start Date: 2016
Construction End Date: 2016
Total Construction Area: 345 m2