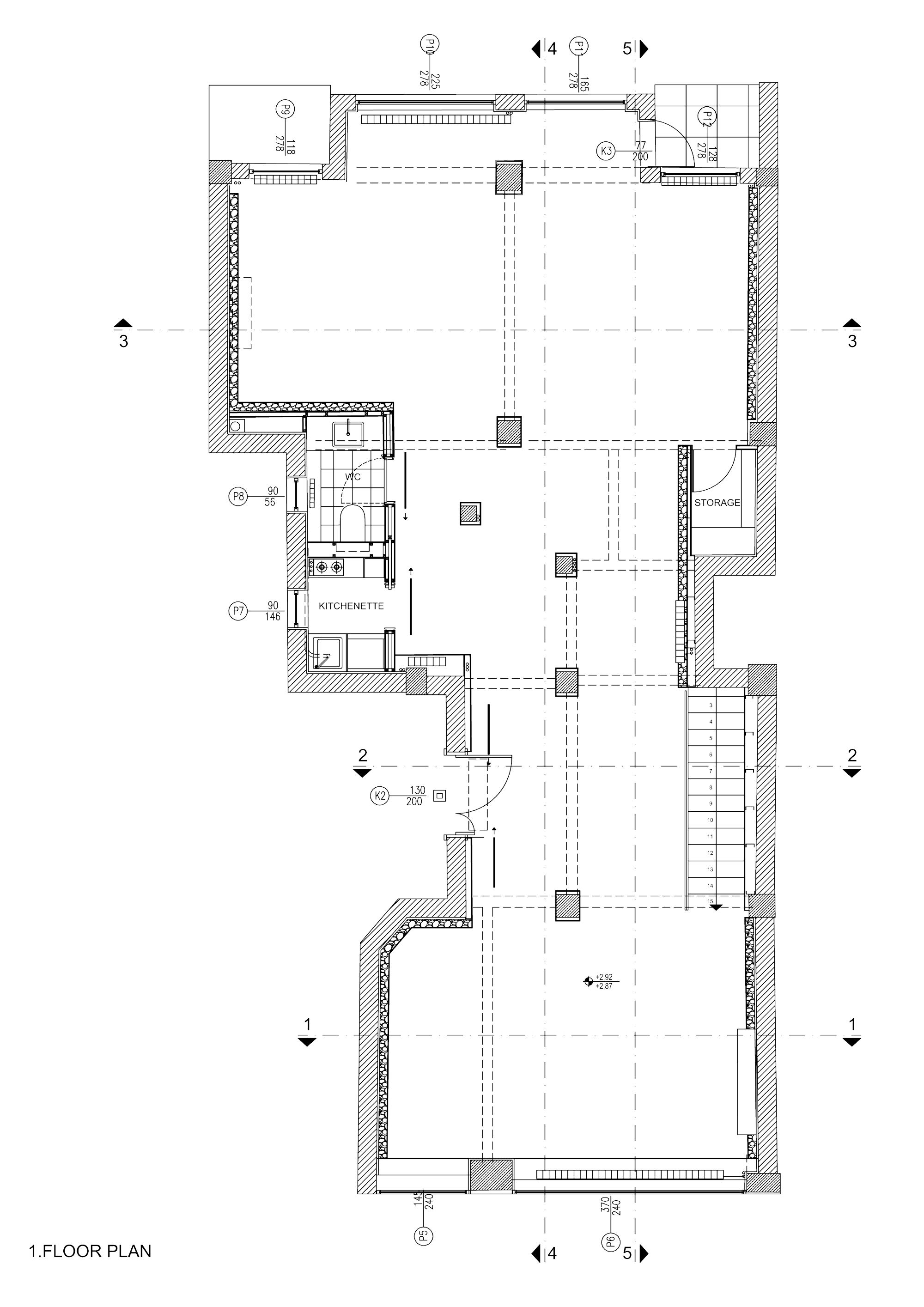
1. Kat Planı
16/23
Paylaş
Resmi Orjinal Boyutunda Göster
Haaz
Fotoğraflar: Ali Bekman
Proje Yeri: İstanbul
Proje Ofisi: Global Architectural Development (GAD)
Proje Tipi: Ofis
Tasarım Ekibi: Gökhan Avcıoğlu
İşveren: Haaz
Yardımcı: Melis Eyüboğlu, Düşüm Sönmezalp, Müge Tan
Ana Yüklenici: Global Architectural Development (GAD)
Aydınlatma Projesi: Tepta Aydınlatma
Statik Projesi: Celal Erdem
Proje Başlangıç Yılı: 2010
Proje Bitiş Yılı: 2010
İnşaat Başlangıç Yılı: 2010
İnşaat Bitiş Yılı: 2011
Toplam İnşaat Alanı: 200 m2